3-Bedroom Farmhouse with Vaulted Great Room – 1677 Sq Ft (Floor Plan)

0 Shares

Specifications

  • Area: 1,667 sq. ft.
  • Bedrooms: 3
  • Bathrooms: 2
  • Stories: 1
  • Garages: 2

Welcome to the gallery of photos for the Farmhouse with Vaulted Great Room – 1677 Sq Fte. The floor plans are shown below:

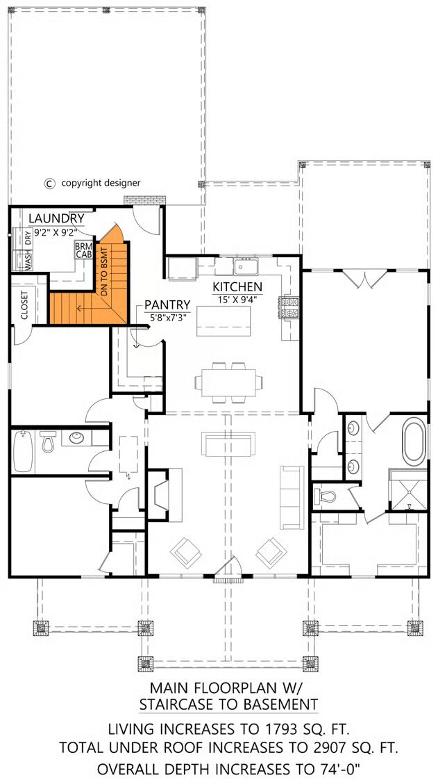
Main floor plan

Buy This Plan

Welcome home to modern farmhouse charm and barndominium style.
Experience the perfect blend of rustic elegance and contemporary living in this unique barndominium.
This inviting barndominium exterior showcases timeless design and curb appeal.
The heart of the home, this open living space combines comfort with modern style.
This seamless open-concept design is perfect for entertaining and everyday living.
The dining area seamlessly connects the living space and kitchen, perfect for casual meals or gatherings.
A spacious kitchen island anchors this modern, functional, and stylish kitchen.
Enjoy the spacious and airy feel of a bright, open-concept living and kitchen area.
Elegant fixtures and bright finishes create a welcoming and well-appointed dining area.
With direct access to the outdoors, this master suite offers a private escape.
The perfect blend of comfort and style, this master bedroom is a cozy sanctuary.
This sleek master bathroom offers a spa-like retreat with a freestanding tub and walk-in shower.
Stylish fixtures and clean lines define this luxurious master bathroom.

Buy This Plan

This rustic farmhouse plan showcases a barndominium-inspired exterior while being designed for conventional wood framing with 2×4 exterior walls.

Offering 1,677 sq. ft. of heated living space, the home features 3 bedrooms and 2 bathrooms, blending comfort with efficiency.

At the rear, a 510 sq. ft. 2-car carport with a convenient side-entry layout provides sheltered parking and easy access to the home.

=> Looking for a custom Barndominium floor plan? Click here to fill out our form, a member of our team will be in touch.

💸 80% of Barndo Budgets Blow Up in Planning
Get the $7 tool that helps you avoid delays, overbidding & costly mistakes.
Grab the $7 Planner
0 Shares
See also  4-Bedroom Modern Farmhouse Barndominium with Large Bonus Room Over Garage - 3205 Sq Ft (Floor Plan)

Lisa Young

Lisa Young, writer and construction pro, crafts custom homes. Captivated by barndominiums for four years, she shares insights and advice in engaging articles, empowering readers to create unique living spaces mirroring their aspirations. Join her exciting journey exploring barndominium living.

Recent Posts