Specifications
- Area: 4,023 sq. ft.
- Bedrooms: 3
- Bathrooms: 3.5
- Stories: 2
- Garages: 6
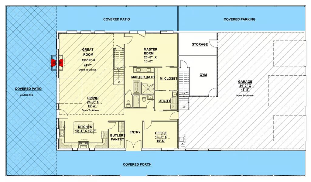
Welcome to the gallery of photos for the Exclusive Barndominium with Home Gym and Office. The floor plans are shown below:
















Embrace scenic living with this barndominium-inspired home plan, designed with conventional 2×6 framing and a sprawling wraparound porch that captures views in every direction.
Offering 4,023 square feet of heated living space across two floors and a 2,350 sq. ft. 3-car garage, this home blends rustic character with modern versatility.
Inside, soaring two-story ceilings elevate the great room, which flows seamlessly into the dining area and chef’s kitchen. A large island anchors the kitchen, complemented by a generous butler’s pantry for exceptional storage.
The main-level master suite is privately situated and opens to the porch through French doors. A dedicated home office provides flexibility—use it as-is or easily convert it into a fourth bedroom.
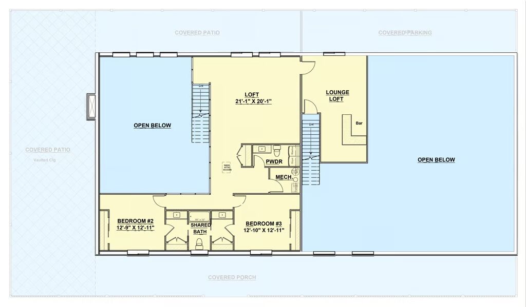
Upstairs, a spacious loft overlooks the living area and connects to two family bedrooms sharing a Jack-and-Jill bath.
The oversized garage includes an extra-large door, a dedicated home gym, and a storage room.
A private staircase leads to a bonus loft with a built-in bar, offering the perfect hangout space—or convert the loft, gym, and storage rooms into a mother-in-law suite with the addition of a bathroom.
=> Looking for a custom Barndominium floor plan? Click here to fill out our form, a member of our team will be in touch.
