Specifications
- Area: 2,030 sq. ft.
- Bedrooms: 3
- Bathrooms: 2
- Stories: 1
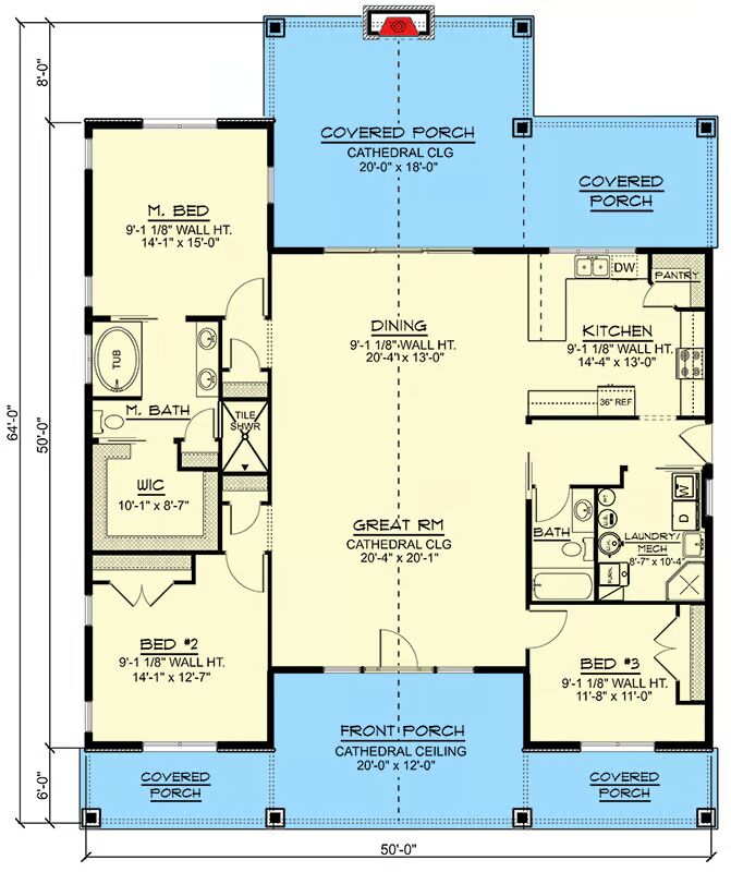
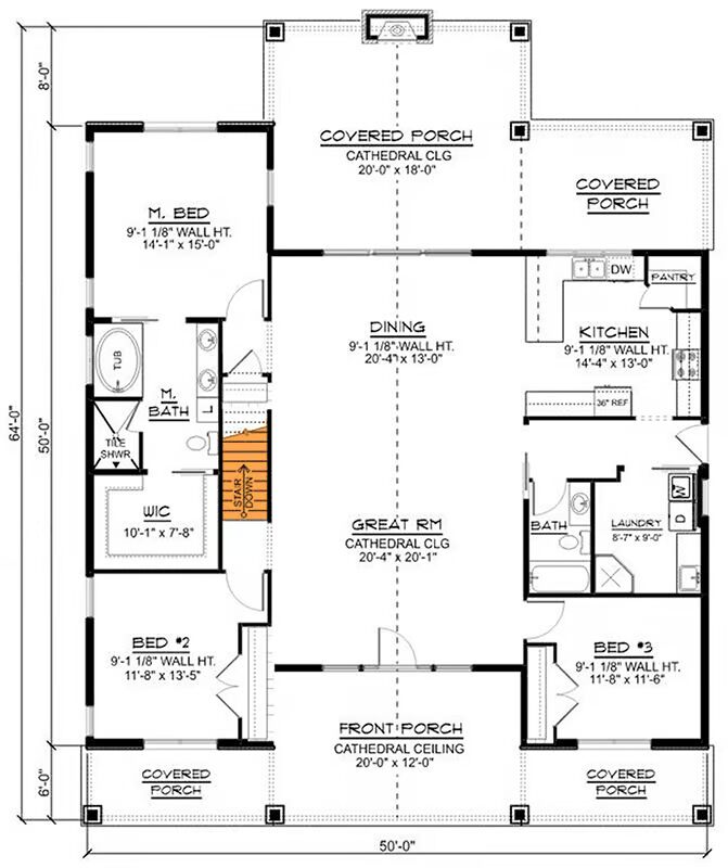
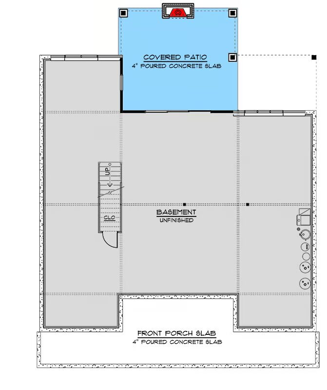
Welcome to the gallery of photos for the Country Craftsman House with Vaulted Great Room – 2030 Sq Ft. The floor plans are shown below:

























This rustic one-story country Craftsman home is designed for relaxed living with abundant outdoor space.
A 50′-wide front porch provides a welcoming entry and plenty of room to enjoy the outdoors, while the back features a spectacular 18′-deep vaulted covered porch that functions as an outdoor living room. A smaller porch off the kitchen adds even more fresh-air appeal.
Built with conventional wood framing and 2×6 exterior walls, the home is as sturdy as it is charming. Inside, an open floor plan with a vaulted front-to-back ceiling connects the great room, dining, and kitchen areas.
The kitchen includes casual counter seating, a spacious corner pantry, and a convenient side entry for bringing in groceries.
The private master suite enjoys natural light from three sides and features a large walk-in closet with pocket-door access to a spa-like five-fixture bath. Two additional bedrooms are located at the front of the home, each with generous closet space.
The exterior is finished with corrugated metal siding, completing the home’s rustic Craftsman character.
=> Looking for a custom Barndominium floor plan? Click here to fill out our form, a member of our team will be in touch.
