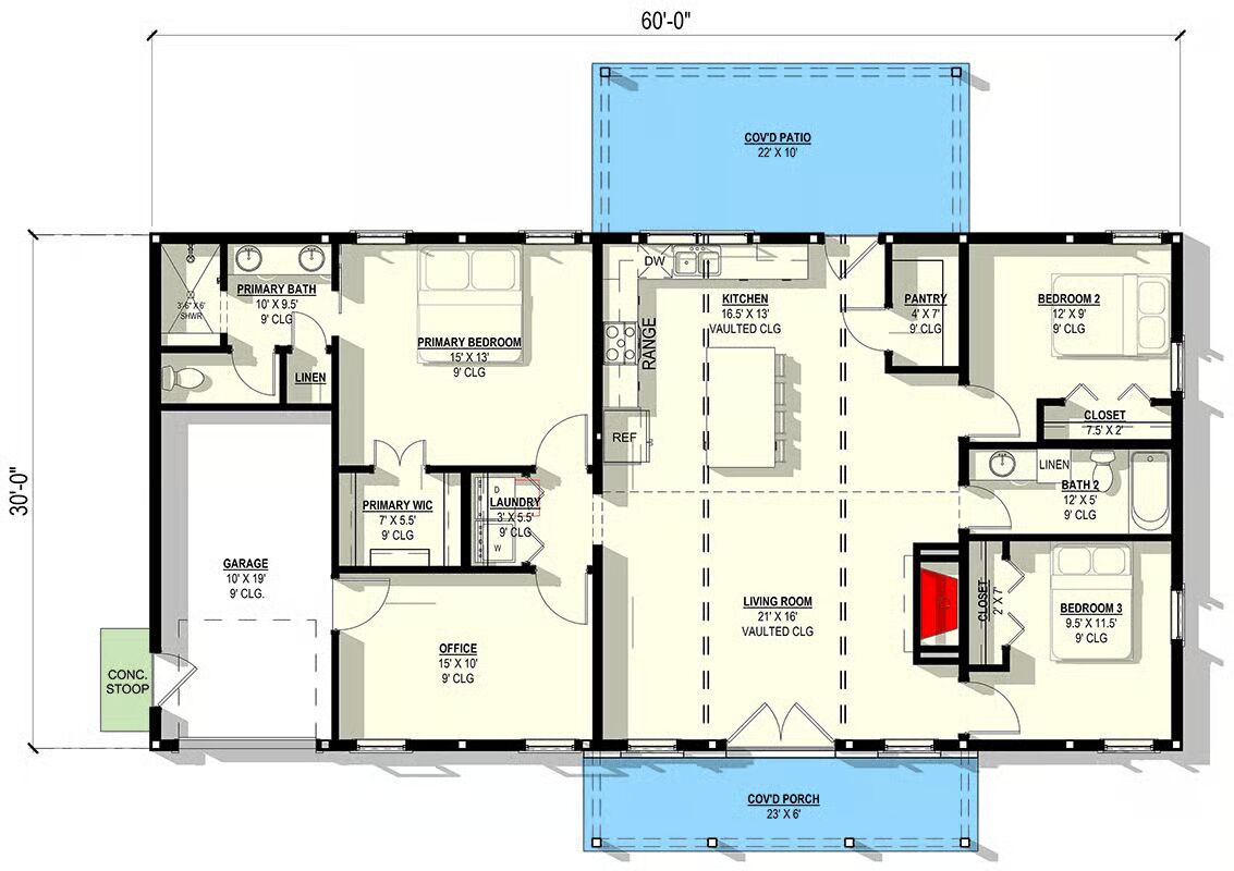
Specifications
- Area: 1,591 sq. ft.
- Bedrooms: 3
- Bathrooms: 2
- Stories: 1
- Garages: 1
Welcome to the gallery of photos for the Country Barndominium House with Split Bedrooms and Home Office. The floor plan is shown below:





Discover charming country living with modern convenience in this 1,591 sq. ft. Barndominium-style home, featuring 3 bedrooms, 2 full baths, and a 209 sq. ft. attached 1-car garage.
Vertical siding and a durable metal roof create timeless curb appeal with a rustic–modern edge.
Step inside to a beautifully designed open-concept floor plan, where a vaulted living room flows effortlessly into the kitchen and dining areas, creating a warm and inviting atmosphere.
A dedicated home office sits conveniently near the primary suite, offering a quiet, private workspace.
At the heart of the home, the expansive living room welcomes abundant natural light from the covered front porch.
The adjoining gourmet kitchen boasts a large island and a discreet butler’s walk-in pantry, providing exceptional storage and prep space—ideal for both daily use and entertaining.
The dining area extends seamlessly to a spacious covered rear patio, perfect for outdoor meals or relaxing evenings.
The private primary suite is thoughtfully positioned on the left side of the home, featuring a luxurious bath and a generous walk-in closet.
Two additional bedrooms and a full bath are located on the opposite side, offering a desirable split-bedroom layout to enhance comfort and privacy for family and guests.
Practical touches continue with a convenient main-level laundry room and an expansive pantry that keeps the kitchen organized and clutter-free.
Outdoor living shines with a welcoming 138 sq. ft. covered front porch—ideal for morning coffee—and a generous 220 sq. ft. covered back patio perfect for alfresco dining and year-round enjoyment.
This charming country barndominium blends functionality, comfort, and rustic elegance, making it an ideal retreat for modern living.
=> Looking for a custom Barndominium floor plan? Click here to fill out our form, a member of our team will be in touch.
