Specifications
- Area: 3,004 sq. ft.
- Bedrooms: 3
- Bathrooms: 2.5+
- Stories: 2
- Garages: 3
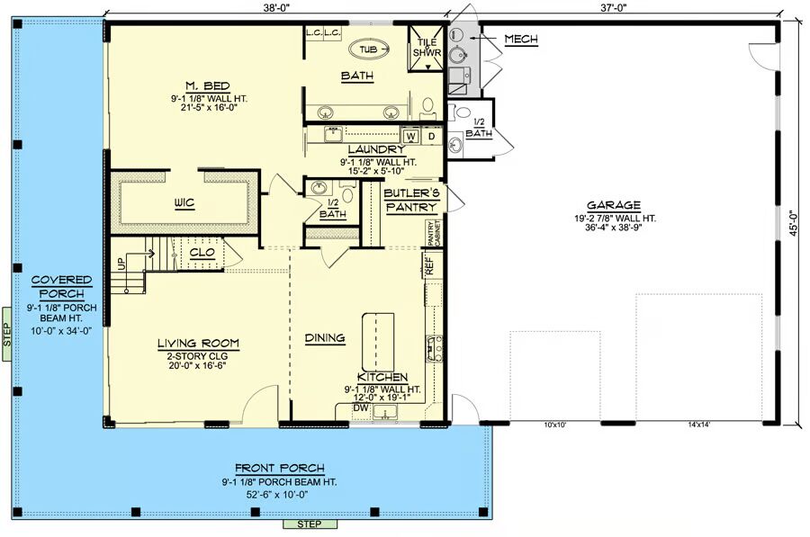
Welcome to the gallery of photos for the Contemporary Barndominium-style Home with L-shaped Porch. The floor plans are shown below:








This 3-bedroom contemporary barndominium-style home combines modern design with functional living and incredible garage space.
A wraparound front porch offers the perfect spot to relax outdoors, with access from both the living room—through sliding glass doors on two walls—and the main-level master suite.
Inside, the living room impresses with a dramatic two-story ceiling and open flow into the kitchen and dining area. A butler’s pantry provides exceptional storage and prep space.
The master suite is thoughtfully designed with a spa-inspired bathroom featuring dual vanities, a walk-in closet, and a convenient connection to the laundry room.
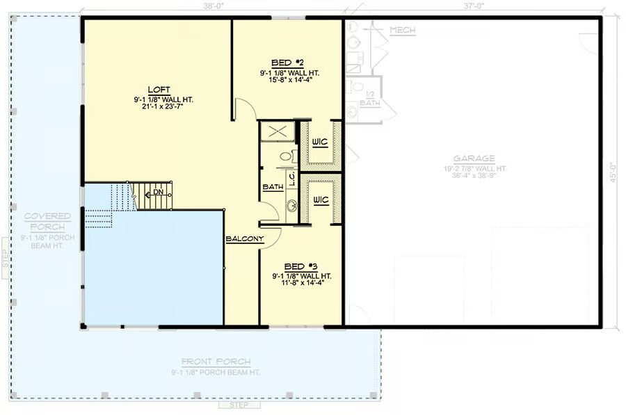
Upstairs, two bedrooms—each with its own walk-in closet—share a full bath. A spacious loft and balcony overlooking the great room provide a versatile retreat for kids or guests.
Car enthusiasts and hobbyists will love the oversized garage, complete with a 10′ x 10′ overhead door for larger vehicles, plus a 14′ x 14′ RV- and boat-ready door. A half bath adds extra convenience after time spent in the workshop.
=> Looking for a custom Barndominium floor plan? Click here to fill out our form, a member of our team will be in touch.
