Specifications
- Area: 1,896 sq. ft.
- Bedrooms: 3
- Bathrooms: 2
- Stories: 1
- Garages: 4
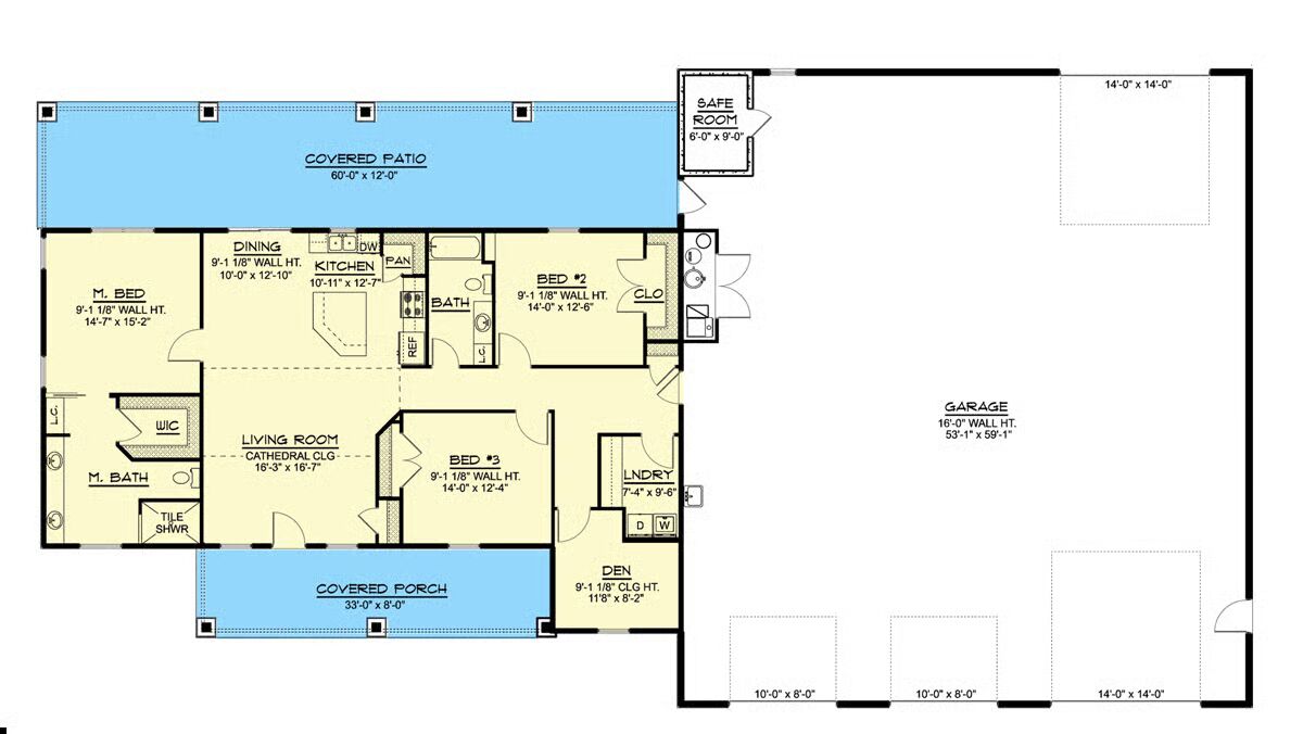
Welcome to the gallery of photos for the Barndominium with Oversized 4-Car Garage – 1896 Sq Ft. The floor plan is shown below:









Discover the perfect blend of work and lifestyle with this barndominium house plan, offering 3 bedrooms, an open-concept layout, and a massive 3,240 sq. ft. garage.
Step through the front door into a cathedral-ceiling living room that flows seamlessly into the eat-in kitchen, creating a bright and inviting space for daily living and entertaining.
A cozy den provides a quiet retreat, while the 12′-deep rear porch extends your living space outdoors.
The private master suite is tucked along one side of the home, featuring comfort and seclusion, while two additional bedrooms occupy the opposite wing, each generously sized for family or guests.
The spacious garage is a standout feature, with four overhead doors—including two oversized doors at the front and rear for easy RV or large-vehicle access.
Inside, the garage also includes a utility sink, safe room, and direct access to the back porch, offering convenience and security.
Designed with conventional 2×6 wood framing and finished with corrugated metal siding, this barndominium blends durability, practicality, and modern farmhouse charm—ideal for those seeking a versatile home that balances comfort with functionality.
=> Looking for a custom Barndominium floor plan? Click here to fill out our form, a member of our team will be in touch.
