Specifications
- Area: 2,212 sq. ft.
- Bedrooms: 3
- Bathrooms: 2.5
- Stories: 2
- Garages: 2
Welcome to the gallery of photos for the Barndominium with Main Level Master and 1126 Square Foot Garage. The floor plans are shown below:


Buy This Plan






This charming Barndominium-style home blends rustic character with modern comfort, featuring a thoughtfully designed layout and stylish corrugated metal siding exterior.
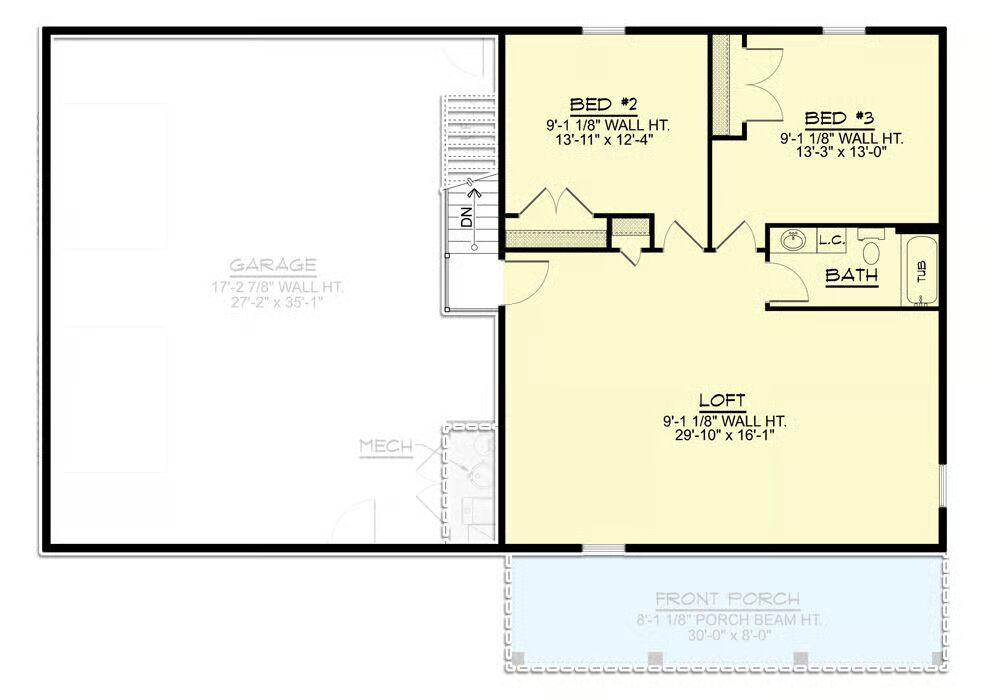
The left wing of the home showcases a spacious 27’2″-deep double garage, providing ample room for vehicles, tools, or a workshop.
An 8-foot-deep covered front porch welcomes you inside, leading to an inviting open-concept living room that seamlessly connects to the kitchen, complete with an oversized island and sink with a forward-facing view — perfect for cooking and entertaining.
The main-level master suite offers convenience and privacy, featuring a full ensuite bathroom and direct access to the laundry room for everyday ease. A mudroom off the garage entrance helps keep the home organized and tidy.
Upstairs, discover two comfortable bedrooms that share a full bath, along with a spacious loft ideal for a media room, playroom, or flexible living area.
Combining functionality, charm, and style, this Barndominium plan delivers comfortable living with a timeless country aesthetic.
=> Looking for a custom Barndominium floor plan? Click here to fill out our form, a member of our team will be in touch.
