Specifications
- Area: 2,663 sq. ft.
- Bedrooms: 3
- Bathrooms: 3.5
- Stories: 2
- Garages: 6
Welcome to the gallery of photos for the Barndominium-Style House with Massive RV and Drive Through Garage. The floor plans are shown below:








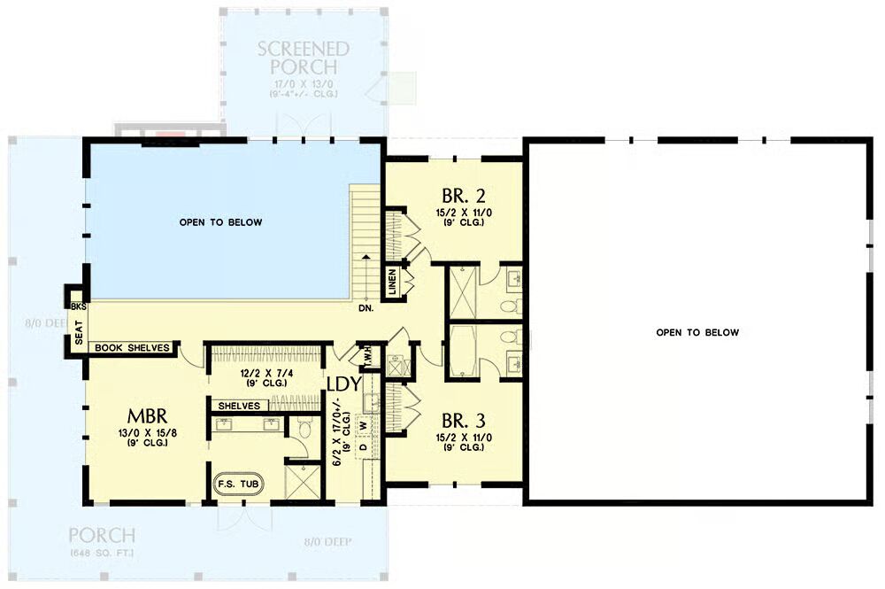
This stunning 3-bedroom, 3.5-bath barndominium-style home offers 2,663 sq. ft. of heated living space paired with an impressive 2,060 sq. ft. garage, complete with an RV bay and tandem-style parking for up to six vehicles.
Designed for both comfort and functionality, the home also features a wraparound porch and a screened back porch, perfect for enjoying the outdoors year-round.
Step inside the welcoming foyer, complete with a coat closet, and discover a soaring 2-story entertainment room with fireplace and seamless access to the screened porch. A private office sits just off the foyer, providing the perfect work-from-home retreat.
The open-concept layout flows effortlessly from the dining room to the gourmet kitchen and into the entertainment space beyond.
A mudroom connects the main living area to the oversized drive-through garage, which features a dramatic 37′ x 39′ open bay with soaring ceilings, offering unmatched flexibility for storage, vehicles, or hobbies.
Upstairs, all three bedrooms enjoy the privacy of en suite baths. The luxurious master suite boasts a spacious walk-in closet with custom built-ins and direct access to the laundry room for added convenience.
Blending rustic charm with modern amenities, this home is the ideal choice for those seeking a barndominium lifestyle with ample space for living, entertaining, and storage.
=> Looking for a custom Barndominium floor plan? Click here to fill out our form, a member of our team will be in touch.
