3-Bedroom Barndominium-Style House For The Outdoors Lover – 2866 Sq Ft (Floor Plan)

0 Shares

Specifications

  • Area: 2,866 sq. ft.
  • Bedrooms: 3
  • Bathrooms: 2.5
  • Stories: 2
  • Garages: 6

Welcome to the gallery of photos for the Barndominium-Style House For The Outdoors Lover – 2866 Sq Ft. The floor plans are shown below:

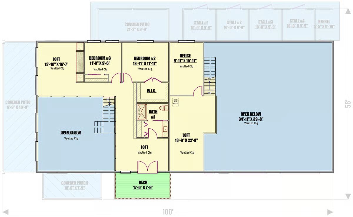
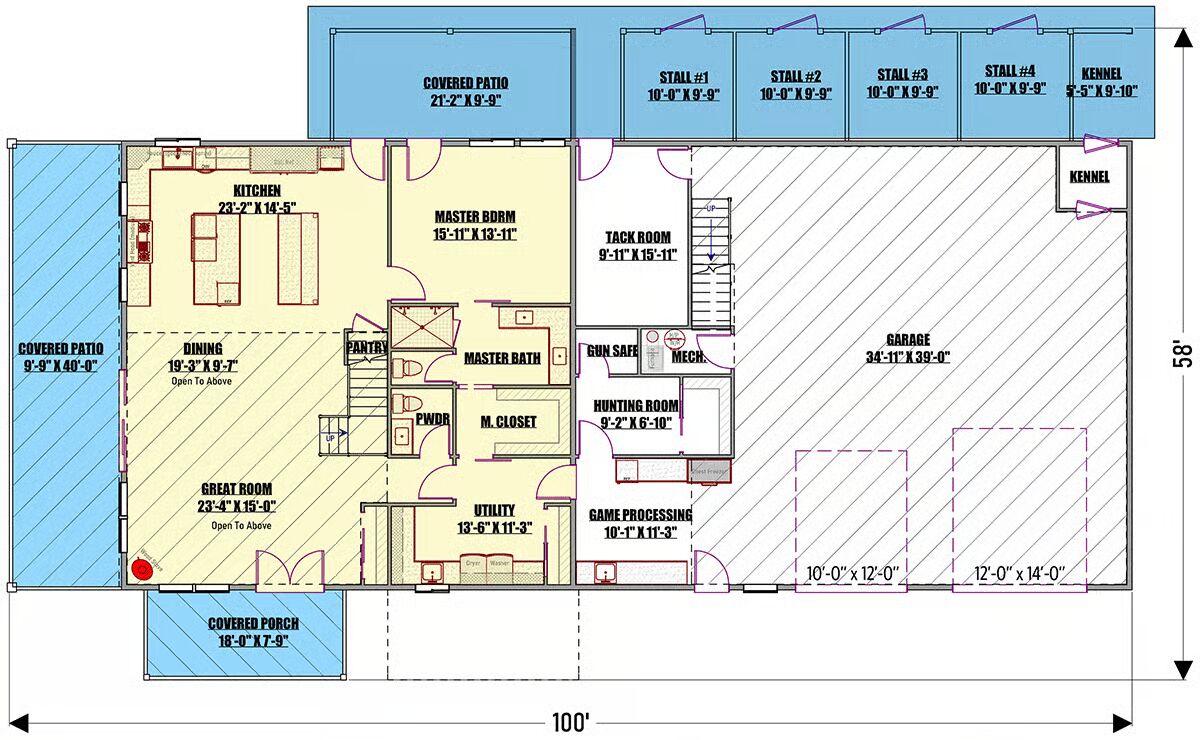
Main level floor plan
Second level floor plan

Buy This Plan

This striking barndominium-style house blends rustic charm with modern elegance, featuring a wide covered patio perfect for outdoor living.
Nestled against a picturesque mountain backdrop, this barndominium showcases expansive views and a long, inviting porch extending along the entire side.
With its dramatic gable roof and exposed timber trusses, this barndominium offers a perfect blend of industrial strength and farmhouse warmth for stylish entertaining.
The sleek, extended profile of this barndominium-style home offers a sophisticated take on country living, with a scenic mountain vista completing the view.
Experience the perfect blend of form and function with modern garage doors and a welcoming covered entrance, making a bold statement in the landscape.
The clean, vertical metal siding and subtle wood accents of this side view highlight the powerful, contemporary lines of the barndominium design.
A light-filled, open-concept living and dining area boasts soaring ceilings and massive windows that frame beautiful outdoor views.
The grand, two-story living room creates a striking focal point with a dramatic wall of windows and comfortable, modern seating.
This spacious, chef-ready kitchen features a double island layout, sleek subway tile, and an open view to the loft above.
The bright modern kitchen and dining space flow together beautifully, accented by contemporary pendant lighting and large windows overlooking the yard.
The main bedroom is a serene, monochromatic retreat with striking wall art, warm wood floors, and soft sheer curtains.
A chic master bathroom vanity features sleek black sinks, oversized mirrors with black frames, and elegant marble-style tile.
This stylish bathroom features a modern walk-in shower with a frameless glass door, dual shower heads, and pebble flooring.
Get organized with this custom modular closet system, offering a perfect blend of open shelving, hanging space, and functional wood accents.
The dedicated home office is a bright and productive space with extensive wood shelving and a view of the colorful landscape.
This highly organized laundry room features ample cabinet storage, a large utility sink, and a modern pebble-style floor.
A cozy media corner offers the perfect spot to relax and enjoy a show, complete with built-in storage and large windows to appreciate the outdoors.
The upstairs loft provides an inviting secondary entertainment space with custom built-in cabinetry surrounding a large television.
An architecturally stunning open loft overlooks the main level, providing a dynamic transition with a wood staircase and sleek metal railing.

Buy This Plan

Rural charm meets modern design in this barndominium-style home, offering 2,866 square feet of heated living space and an impressive 1,982-square-foot 6-car garage. Built with durable 2×6 exterior walls, this versatile home is designed for both function and comfort.

The garage complex includes four stalls, a kennel, a tack room with direct access, and a covered patio. Stables can easily be removed or converted into additional covered parking or storage. A gun and safe room add to the property’s practicality and security.

Step inside through French doors from the front porch into a stunning two-story open-concept living space. The great room flows seamlessly into the dining area and the chef’s kitchen, which features dual islands and a sink overlooking the backyard.

Top 5 Mistakes DIY Barndo Builders Make!
Most self-builders lose $10K+ before breaking ground.
Grab the Planner

Sliding doors extend living outdoors to a 9’9″-deep covered patio.

The main-level master suite offers patio access, a spa-inspired bath, and a walk-in closet with laundry access hidden behind a barn door.

Upstairs, two bedrooms share a full bath, while multiple lofts overlook the living space below, offering flexible options for play, study, or relaxation.

A separate staircase from the garage leads to an additional loft and a dedicated office with its own private entrance, ideal for working from home.

With its abundant storage, unique bonus spaces, and multi-use design, this property is a dream home for those seeking both lifestyle and functionality.

See also  3-Bedroom Sleek Modern Barndominium House with Open Concept Living (Floor Plan)

=> Looking for a custom Barndominium floor plan? Click here to fill out our form, a member of our team will be in touch.

đź’¸ 80% of Barndo Budgets Blow Up in Planning
Get the $7 tool that helps you avoid delays, overbidding & costly mistakes.
Grab the $7 Planner
0 Shares

Lisa Young

Lisa Young, writer and construction pro, crafts custom homes. Captivated by barndominiums for four years, she shares insights and advice in engaging articles, empowering readers to create unique living spaces mirroring their aspirations. Join her exciting journey exploring barndominium living.

Recent Posts