3-Bedroom Barndominium-Style Home with 1-Car Garage and Bonus Upstairs – 1620 Sq Ft (Floor Plan)

0 Shares

Specifications

  • Area: 1,620 sq. ft.
  • Bedrooms: 3
  • Bathrooms: 2
  • Stories: 1
  • Garages: 1

Welcome to the gallery of photos for the Barndominium-Style Home with 1-Car Garage and Bonus Upstairs – 1620 Sq Ft. The floor plans are shown below:

Main level floor plan
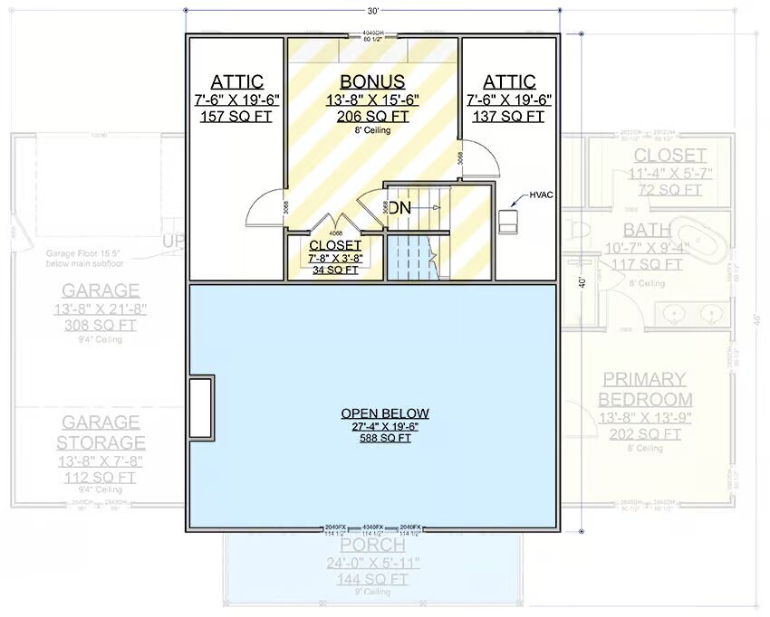
Second level floor plan

Buy This Plan

The commanding Barndominium-style facade features a dark, board-and-batten look, striking a bold contrast against the bright sky and green lawn.
This view highlights the classic barn profile and welcoming covered porch of the modern Barndominium-style home.
The dark, stylish Barndominium-style residence sits comfortably on a large lot, featuring a broad front porch for outdoor living.
The simple yet elegant rear profile of the Barndominium-style home features clean lines and contrasting dark siding.
From this angle, the modern Barndominium-style house showcases its layered roofline and striking dark vertical siding.
This side view of the Barndominium-style structure clearly shows the integrated garage, blending utility with sophisticated design.
The vast, open-concept living space features soaring ceilings, a stunning stone fireplace, and a sleek kitchen island with seating.
A comfy tan leather sofa and dark coffee table anchor the living area, which connects seamlessly to a modern kitchenette.
This serene primary bedroom is defined by a beautiful wooden bed frame and a sophisticated dark accent wall.
A light-filled guest bedroom offers a modern dark-wood bed frame with crisp blue linens and large windows overlooking the property.
A highly functional mudroom/laundry area provides smart storage with dark overhead cabinets, a built-in wooden bench, and gold hardware.
The elegant primary bathroom features a dual-sink wood vanity, gold-accented mirrors, and a spacious glass-enclosed shower.
Natural light floods this bright bathroom, highlighting the standalone soaking tub and marble-topped vanity.

Buy This Plan

Discover modern country living with this 3-bedroom, 2-bath barndominium-style home, offering 1,620 sq. ft. of heated living space and a 420 sq. ft. rear-load garage.

Step through elegant double doors into a vaulted open-concept living area that seamlessly connects the living room, dining space, and kitchen—ideal for relaxed gatherings and everyday comfort.

Expansive windows fill the home with natural light, creating a bright and welcoming atmosphere in every corner. The primary suite provides a private retreat, complete with a spa-inspired bath and a generous walk-in closet for ultimate convenience.

Top 5 Mistakes DIY Barndo Builders Make!
Most self-builders lose $10K+ before breaking ground.
Grab the Planner

Upstairs, a 240 sq. ft. bonus room offers flexible space for a home office, hobby room, or guest area, and includes attic access for additional storage.

Blending rustic charm with modern functionality, this thoughtfully designed barndominium delivers style, comfort, and versatility in one beautiful package.

=> Looking for a custom Barndominium floor plan? Click here to fill out our form, a member of our team will be in touch.

💸 80% of Barndo Budgets Blow Up in Planning
Get the $7 tool that helps you avoid delays, overbidding & costly mistakes.
Grab the $7 Planner
0 Shares
See also  3-Bedroom Barndominium Under 2400 Sq Ft with 1400 Sq Ft RV-Friendly Garage (Floor Plan)

Lisa Young

Lisa Young, writer and construction pro, crafts custom homes. Captivated by barndominiums for four years, she shares insights and advice in engaging articles, empowering readers to create unique living spaces mirroring their aspirations. Join her exciting journey exploring barndominium living.

Recent Posts