Specifications
- Area: 4,072 sq. ft.
- Bedrooms: 3
- Bathrooms: 2.5
- Stories: 2
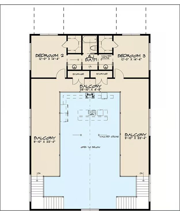
Welcome to the gallery of photos for the Barndominium Inspired Country House with Two Balconies – 4072 Sq Ft. The floor plans are shown below:








Soaring ceilings and an open-concept design define the foyer, great room, kitchen, and breakfast nook, creating a bright and modern layout ideal for family gatherings and entertaining.
The kitchen features a spacious pantry with a wet bar and direct access to the wraparound porch, blending convenience with seamless indoor-outdoor living.
Practicality meets style in the large mudroom and laundry room, designed as the perfect spot to clean up before entering the main living areas.
Upstairs, balconies overlook the great room and kitchen below, adding architectural interest and flexible living options. Whether transformed into a cozy library lined with bookshelves or customized to suit your lifestyle, this space offers endless possibilities.
=> Looking for a custom Barndominium floor plan? Click here to fill out our form, a member of our team will be in touch.
