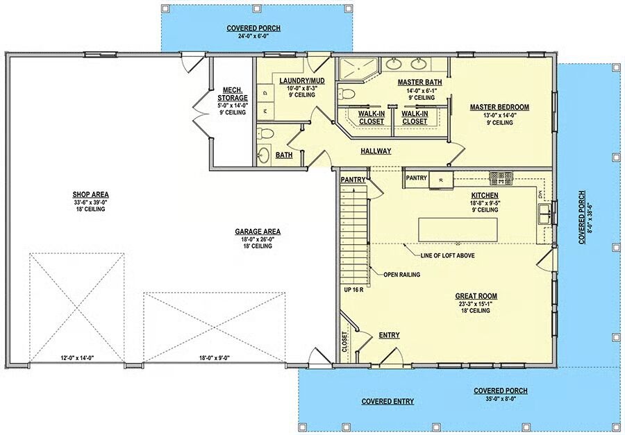
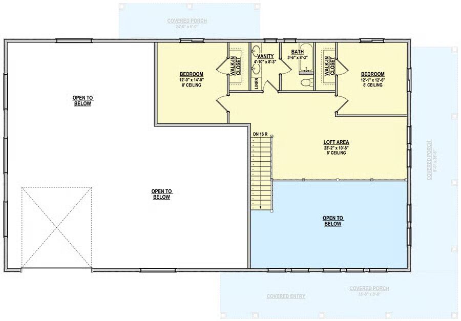
Specifications
- Area: 2,124 sq. ft.
- Bedrooms: 3
- Bathrooms: 2.5
- Stories: 2
- Garages: 3
Welcome to the gallery of photos for the Barndominium House with Wrap Around Porch – 2124 Sq Ft. The floor plans are shown below:










This thoughtfully designed Barndominium house plan delivers 2,124 sq. ft. of heated living space, featuring 3 bedrooms and 2.5 bathrooms.
The open-concept layout blends rustic charm with modern functionality, creating a warm and inviting atmosphere.
Car enthusiasts and hobbyists will appreciate the expansive 1,521 sq. ft. 3-car garage, offering abundant space for vehicles, storage, or a workshop.
Perfectly balancing comfort and practicality, this home provides the ideal setting for both everyday living and entertaining.
=> Looking for a custom Barndominium floor plan? Click here to fill out our form, a member of our team will be in touch.
