Specifications
- Area: 2,730 sq. ft.
- Bedrooms: 4
- Bathrooms: 3
- Stories: 2
- Garages: 2
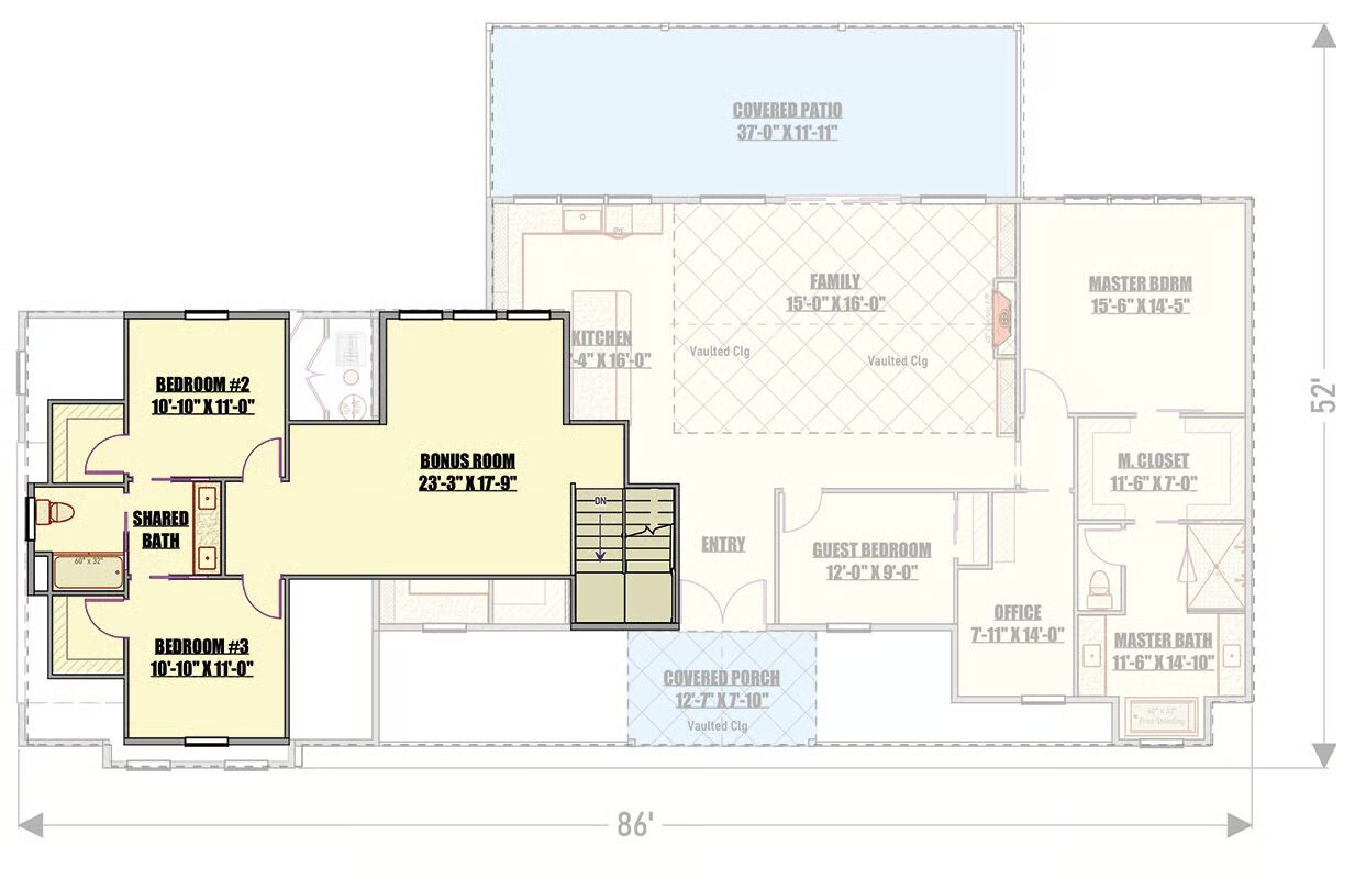
Welcome to the gallery of photos for the Barndominium House with Vaulted Great Room – 2730 Sq Ft. The floor plans are shown below:





















This 2,730 sq. ft. barndominium-style home blends modern comfort with versatile living, offering 4 bedrooms, 3 bathrooms, and an attached 761 sq. ft. 2-car garage.
Step inside from the welcoming covered porch to a bright, open-concept layout with a vaulted great room. The kitchen, complete with a walk-in pantry, flows effortlessly into the expansive family room—an ideal setting for gatherings and everyday living.
The main-floor primary suite provides a private retreat with a spacious walk-in closet and spa-inspired ensuite bath, while the secondary bedrooms are thoughtfully separated for comfort and privacy.
Designed with flexibility in mind, the home includes a dedicated office and a bonus room that can serve as a playroom, home gym, or media space.
Extend your lifestyle outdoors with a generous covered patio, perfect for entertaining or relaxing year-round.
=> Looking for a custom Barndominium floor plan? Click here to fill out our form, a member of our team will be in touch.
