3-Bedroom Barndominium House with Integrated Workshop and Wrap-Around Porch (Floor Plan)

0 Shares

Specifications

  • Area: 3,395 sq. ft.
  • Bedrooms: 3
  • Bathrooms: 3
  • Stories: 2
  • Garages: 3

Welcome to the gallery of photos for the Barndominium House with Integrated Workshop and Wrap-Around Porch. The floor plans are shown below:

A long driveway leads to the impressive Barndominium, showcasing its dark façade and generous garage space.
The striking dark Barndominium features a three-bay garage and a welcoming covered porch entry.
This expansive side view highlights the black metal siding, dark roof, and a stunning stone chimney feature.
Stone features anchor the rear of the Barndominium, providing multiple covered patios for outdoor living.
Stone pillars and natural wood accents elevate the covered porch entrance of this modern Barndominium design.
The living area is bright and airy, centered around a modern black brick fireplace and large windows with scenic views.
A high-ceiling great room features a crisp white sectional and a unique, tiered modern chandelier over the seating area.
Oversized woven light fixtures hang over the dining table, beautifully framing the two-story living space and brick fireplace.
The open-concept main floor features a dramatic staircase and a loft balcony overlooking the bright, spacious living room.
A striking modern staircase with black railings separates the bright dining area from the rest of the open living space.
The sleek, dark kitchen features glass-front cabinetry, marble backsplash, and a large island with woven bar seating.
A view from the kitchen shows the dramatic scale of the open-concept design, featuring high ceilings and exposed beam accents.
Luxuriously textured stone walls surround the deep-soaking tub and dark wood vanity in this spa-like bathroom.
This bedroom features a sophisticated dark accent wall contrasted with a stylish cane and leather headboard.
The main bathroom showcases warm, full-height stone-look tile and extensive dark wood vanities with marble countertops.
Bright light streams into the primary bedroom through floor-to-ceiling glass doors leading to an outdoor area.
A minimalist bedroom design features a contrasting black and white wall, a neutral upholstered bed, and modern hanging pendants.
This cozy sitting room features a rich tan leather sofa, rustic wood beams, and a large abstract landscape art piece.

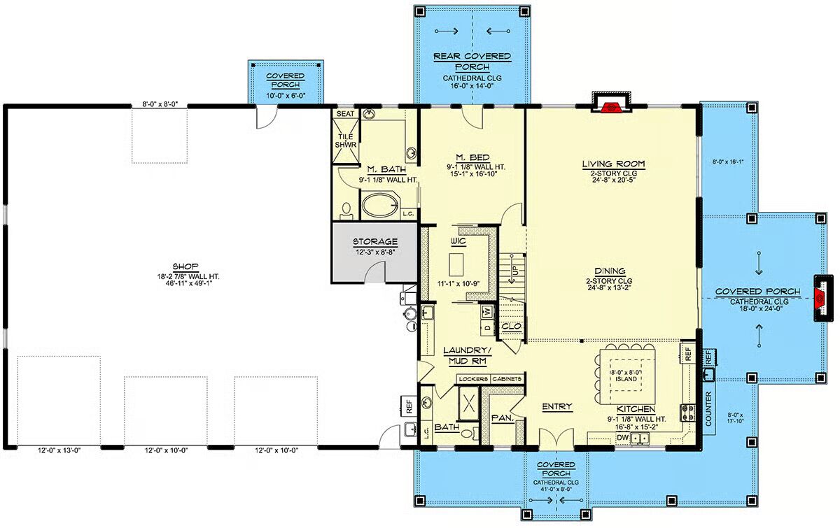
This expansive 3,395 sq. ft. Country Barndominium showcases 3 bedrooms, 3 full bathrooms, and an impressive 2,809 sq. ft. front-entry 3-car garage, blending modern farmhouse charm with exceptional functionality.

A wide covered porch welcomes you inside, where a thoughtfully designed entry opens into a sprawling open-concept layout that unites the living room, dining area, and gourmet kitchen.

Conveniently positioned off the garage, a dedicated mudroom and main-level laundry add everyday practicality.

At the heart of the home, the chef-inspired kitchen boasts a generous island and an oversized walk-in butler’s pantry, seamlessly connecting to the dramatic two-story great room and dining space—an ideal setting for both intimate gatherings and large entertaining.

The luxurious main-floor master suite offers a private retreat, complete with a spa-like en-suite bath, a spacious walk-in closet, and direct access to the laundry room.

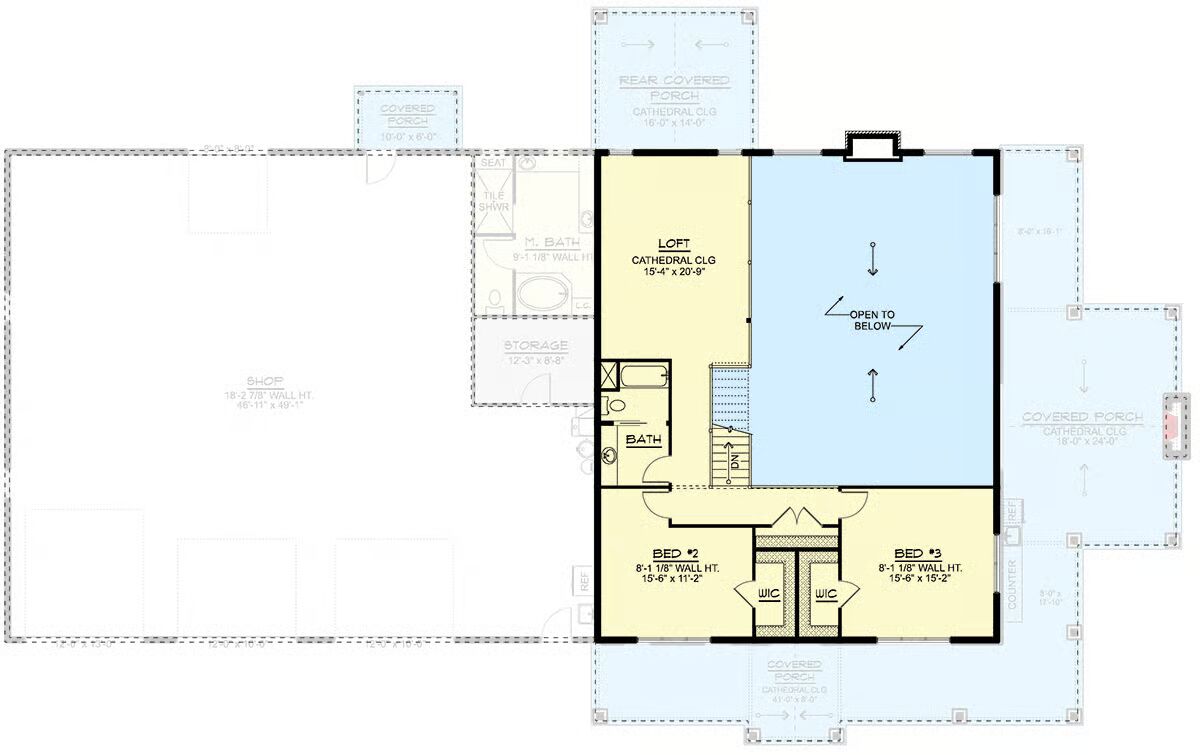
Upstairs, two additional bedrooms and a full bathroom flank a bright, open loft area, creating a perfect secondary living space.

A standout element of this plan is the massive 2,120 sq. ft. integrated workshop—ideal for hobbyists, entrepreneurs, or anyone needing abundant storage—conveniently accessible from inside the home.

Top 5 Mistakes DIY Barndo Builders Make!
Most self-builders lose $10K+ before breaking ground. Avoid all 5 with this $7 planner.
Grab the Planner

Outdoor living takes center stage with an extensive 1,332 sq. ft. wrap-around covered porch, complete with an inviting outdoor fireplace, perfect for year-round relaxation and entertaining.

See also  3-Bedroom Two-Story Barndominium House with Rec Room Above - 2556 Sq Ft (Floor Plan)

=> Looking for a custom Barndominium floor plan? Click here to fill out our form, a member of our team will be in touch.

đź’¸ 80% of Barndo Budgets Blow Up in Planning
Get the $7 tool that helps you avoid delays, overbidding & costly mistakes.
Grab the $7 Planner
0 Shares

Lisa Young

Lisa Young, writer and construction pro, crafts custom homes. Captivated by barndominiums for four years, she shares insights and advice in engaging articles, empowering readers to create unique living spaces mirroring their aspirations. Join her exciting journey exploring barndominium living.

Recent Posts