3-Bedroom 1805 Sq Ft Country Barndominium House with 1235 Sq Ft 3-Car Garage (Floor Plan)

0 Shares

Specifications

  • Area: 1,805 sq. ft.
  • Bedrooms: 3
  • Bathrooms: 2.5
  • Stories: 1
  • Garages: 3

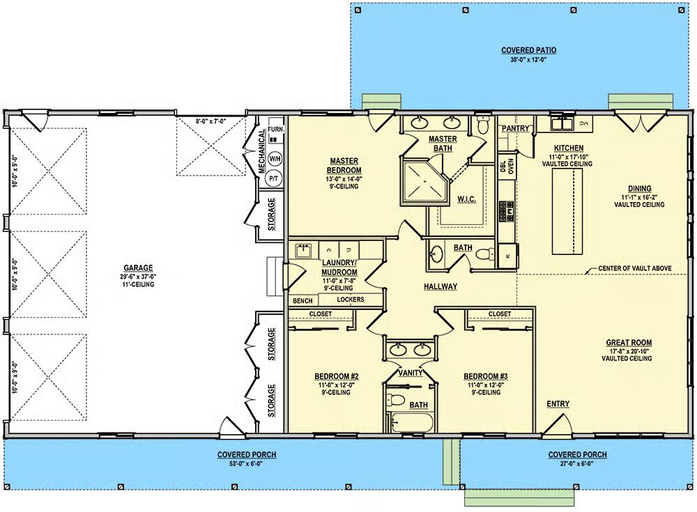
Welcome to the gallery of photos for the 1805 Sq Ft Country Barndominium House with 1235 Sq Ft 3-Car Garage. The floor plan is shown below:

Buy This Plan

This modern barndominium shows off a sleek white exterior with dark trim and charming stone column bases, blending rustic character with a contemporary feel.
An impressive three-car garage and a wide covered porch create a grand yet welcoming entrance to this beautiful barndominium.
The rear of this striking barndominium features a three-car garage with rich wooden doors that add a touch of warmth and style to the design.
The back of this home highlights an inviting outdoor patio space, perfect for entertaining and enjoying the outdoors right off the main living area.

Buy This Plan

This barndominium-style home offers 1,980 sq. ft. of heated living space with 3 bedrooms and 2.5 bathrooms, crafted with conventional wood framing and 2×6 exterior walls for strength and efficiency.

The home is paired with a versatile 1,235 sq. ft. garage, featuring three front-facing bays with 10′ x 9′ overhead doors plus a rear bay with an 8′ x 7′ door for added convenience. With 11-foot ceilings, this space is ideal for vehicles, storage, or workshop use.

Top 5 Mistakes DIY Barndo Builders Make!
Most self-builders lose $10K+ before breaking ground.
Grab the Planner

=> Looking for a custom Barndominium floor plan? Click here to fill out our form, a member of our team will be in touch.

💸 80% of Barndo Budgets Blow Up in Planning
Get the $7 tool that helps you avoid delays, overbidding & costly mistakes.
Grab the $7 Planner
0 Shares
See also  Double-Story, 3-Bedroom Barndominium-Style House with Garage Viewing Room (Floor Plans)

Lisa Young

Lisa Young, writer and construction pro, crafts custom homes. Captivated by barndominiums for four years, she shares insights and advice in engaging articles, empowering readers to create unique living spaces mirroring their aspirations. Join her exciting journey exploring barndominium living.

Recent Posts