Specifications
- Area: 2,826 sq. ft.
- Bedrooms: 3-4
- Bathrooms: 2.5
- Stories: 2
- Garages: 2
Welcome to the gallery of photos for the 2826 Square Foot Barndominium House with 2×6 Exterior Walls. The floor plans are shown below:


Buy This Plan






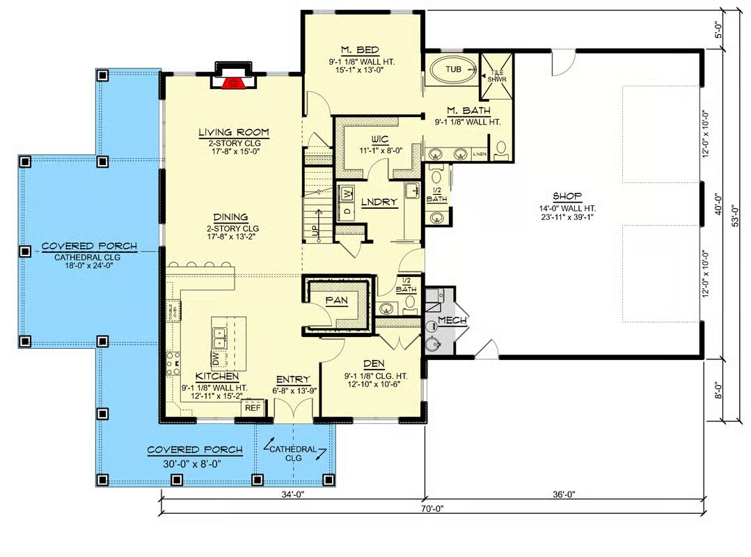
This 3-bedroom barndominium house plan combines rustic charm with modern convenience, highlighted by an oversized garage that doubles as a workshop or storage space.
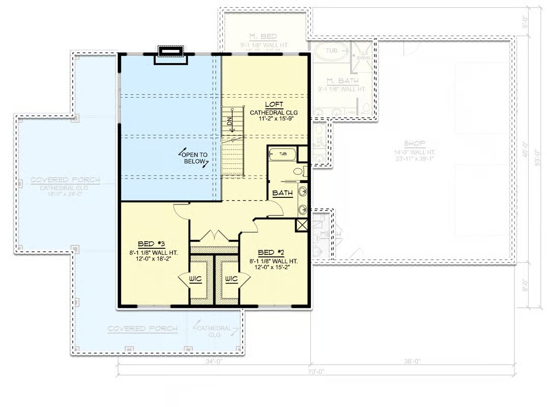
Inside, the open-concept layout features a dramatic two-story ceiling over the living and dining rooms, creating a bright and airy atmosphere with views into the upstairs loft.
The kitchen is designed for both function and style with U-shaped cabinetry, a central island, and a walk-in pantry that doubles as a safe room.
The main-floor master suite offers a private retreat with direct laundry access from the walk-in closet, while a quiet den provides flexible space for a home office or study.
Upstairs, the loft is perfect for a playroom, media space, or lounge, with Bedrooms 2 and 3 located nearby along with a compartmentalized hall bath for added convenience.
Outdoor living is easy with a covered porch ideal for grilling, dining, or simply relaxing while taking in the views. Built with conventional wood framing and 2×6 exterior walls, this home blends durability with timeless barndominium style.
=> Looking for a custom Barndominium floor plan? Click here to fill out our form, a member of our team will be in touch.
