2-Bedroom Two-Story Barndominium with Oversized Event Room – 9800 Sq Ft (Floor Plan)

0 Shares

Specifications

  • Area: 9,800 sq. ft.
  • Bedrooms: 2
  • Bathrooms: 2.5+
  • Stories: 2

Welcome to the gallery of photos for the Two-Story Barndominium with Oversized Event Room – 9800 Sq Ft. The floor plans are shown below:

Buy This Plan

With its bold colors and classic barndominium shape, this home exudes curb appeal and is perfect for large gatherings or simply enjoying the outdoors.
A striking barndominium stands tall with a dark blue roof and patriotic bunting, offering a grand and welcoming presence with its extensive wrap-around porch.
This expansive white barndominium-style house features a sleek dark roof and inviting covered porches, blending rustic charm with modern design.
This barndominium’s stone accents and exposed wood trusses on the porches create a cozy, lodge-like aesthetic, perfect for enjoying the view.
The long, clean lines of this barndominium are highlighted by its sharp contrast of dark siding and bright white, giving it a minimalist yet sophisticated feel.
A side view reveals the classic barndominium structure, showcasing its tall, functional design and the contrast between its clean vertical lines and sturdy, dark base.
This modern kitchen combines warm wood tones with dark cabinets and a white countertop, anchored by striking rope chandeliers and sleek bar stools.
A comfortable living space showcases a plush brown leather sectional and a unique wood coffee table, with a large window and a ceiling fan adding to the relaxed atmosphere.
The open-concept living area boasts a sleek staircase with a black iron railing and a built-in wet bar underneath, creating a sophisticated and functional space.
A stylish living room features contemporary white armchairs and a circular chandelier, centered around a cozy rug and a large sliding glass door that brings the outdoors in.
This second-floor living space is defined by its elegant built-in bookshelves and a warm, inviting seating area that overlooks the main floor.
A peaceful bedroom is highlighted by a rich leather headboard and a unique, dark-toned light fixture, giving the space a cozy, sophisticated feel.
This bright bathroom boasts a chic wooden vanity with woven panels and a large round gold-framed mirror, adding a touch of natural texture and elegance.
A clean and contemporary bathroom features a tub with a partial glass divider and a stylish patterned tile floor, combining practicality with a modern aesthetic.
The large event space is beautifully set up with mixed seating arrangements and a massive stone fireplace, offering a perfect blend of rustic and refined style.
This expansive event hall features soaring ceilings with exposed trusses and elegant circular chandeliers, creating a grand yet inviting atmosphere for any large gathering.
A stunning view of the event hall shows off its high ceilings, modern chandeliers, and a striking stone accent wall, providing a dramatic backdrop for social events.

Buy This Plan

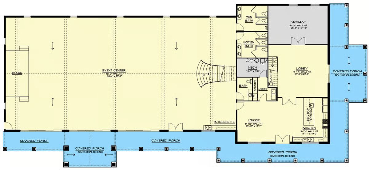
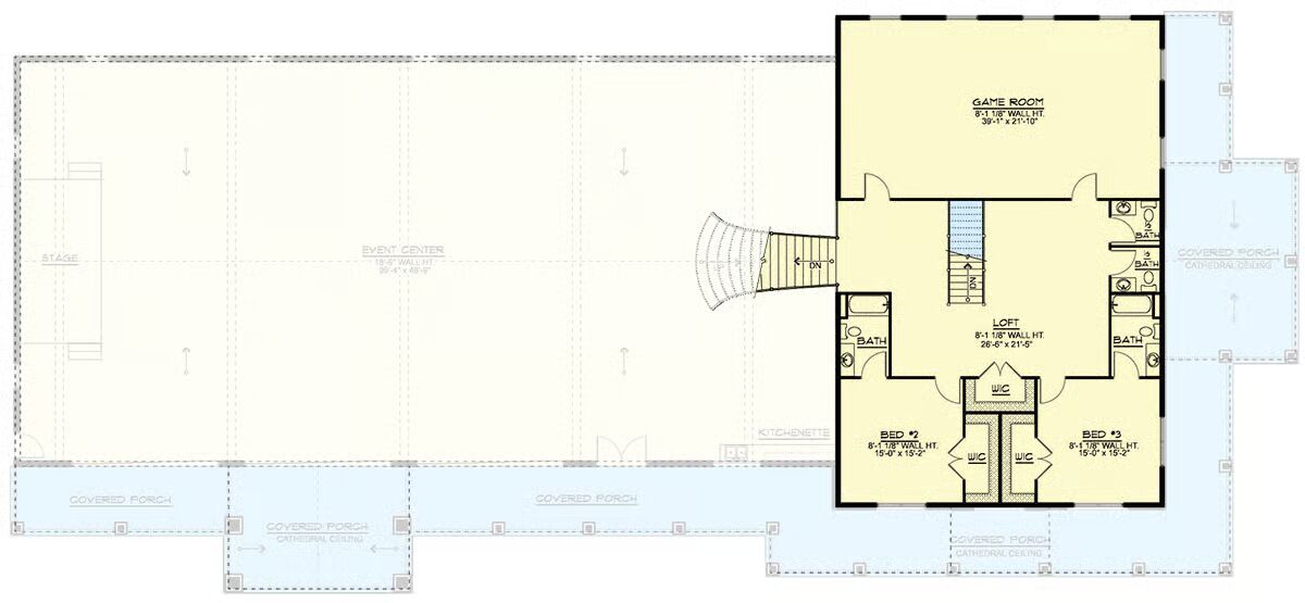
This expansive Barndominium plan offers an impressive 9,800 square feet of heated living space, designed with a massive oversized event area perfect for gatherings, entertaining, or versatile use.

The layout also includes 2 bedrooms and 2 full bathrooms, blending comfort with functionality in a truly unique design.

=> Looking for a custom Barndominium floor plan? Click here to fill out our form, a member of our team will be in touch.

💸 80% of Barndo Budgets Blow Up in Planning
Get the $7 tool that helps you avoid delays, overbidding & costly mistakes.
Grab the $7 Planner
0 Shares
See also  3-Bedroom One-Story Barndominium House with Vaulted Country Kitchen - 1952 Sq Ft (Floor Plan)

Lisa Young

Lisa Young, writer and construction pro, crafts custom homes. Captivated by barndominiums for four years, she shares insights and advice in engaging articles, empowering readers to create unique living spaces mirroring their aspirations. Join her exciting journey exploring barndominium living.

Recent Posts