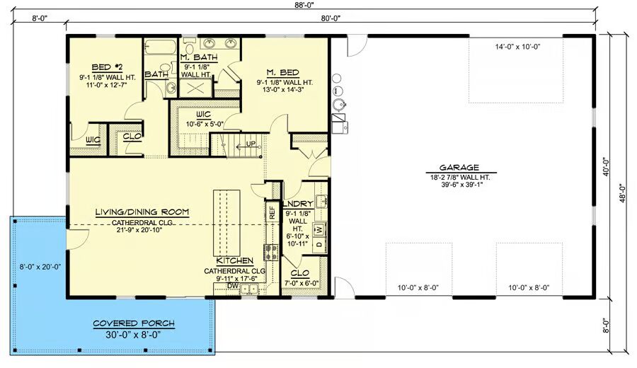
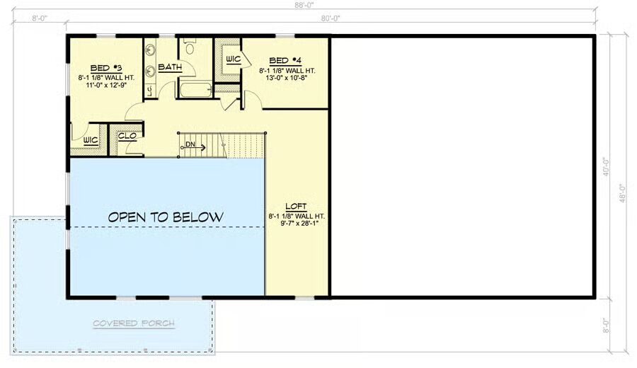
Specifications
- Area: 2,511 sq. ft.
- Bedrooms: 4
- Bathrooms: 3
- Stories: 2
- Garages: 3
Welcome to the gallery of photos for the Rectangular Barndominium with L-Shaped Porch and Drive-Through Garage. The floor plans are shown below:


Buy This Plan





This barndominium-style home features an efficient, budget-friendly rectangular design paired with a wraparound front porch that offers dual entry points and inviting outdoor living.
Inside, an open-concept floor plan with soaring ceilings creates a bright and spacious atmosphere. The oversized kitchen island with seating is perfect for casual dining and entertaining.
The main level includes two bedrooms, along with a convenient laundry/mudroom off the garage entry.
Upstairs, a loft overlooking the living room adds flexible living space, while two additional bedrooms line the back of the home.
The garage is designed for versatility with two front-facing bays and an extra-wide rear overhead door that provides drive-through access.
Durable corrugated metal siding completes the exterior, enhancing the home’s rustic barn-inspired character.
=> Looking for a custom Barndominium floor plan? Click here to fill out our form, a member of our team will be in touch.
