Specifications
- Area: 1,200 sq. ft.
- Bedrooms: 2
- Bathrooms: 2
- Stories: 1
- Garages: 2
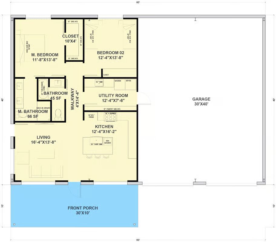
Welcome to the gallery of photos for the Modern Rustic Barndominium Ranch Home with 2-Car Garage – 1200 Sq Ft. The floor plan is shown below:








Experience the perfect blend of rustic warmth and modern sophistication in this barndominium-style home, designed for both comfort and functionality.
With thoughtfully planned living spaces and generous storage options, this home balances style with everyday practicality.
A highlight of the property is the expansive garage, complete with two 12′ x 10′ doors—ideal for large vehicles, hobbies, or workshop projects.
Inside, a spacious utility/mudroom features an entire wall of pantry shelving, keeping essentials organized and within easy reach.
At the heart of the home, the open-concept kitchen, dining, and living area creates an inviting space for gatherings, seamlessly integrating cooking, dining, and relaxation. High ceilings throughout enhance the home’s airy and modern feel.
The primary suite is a true retreat, offering a spa-inspired bath with dual vanities, a walk-in shower, and a large walk-in closet. A second oversized bedroom adds flexibility for guests, family, or a multipurpose space.
Step outside to enjoy 300 sq. ft. of covered front porch living—perfect for morning coffee, evening sunsets, or relaxing with family and friends.
With its combination of modern convenience, rustic charm, and mid-century influence, this home delivers a distinctive living experience tailored for today’s lifestyle.
=> Looking for a custom Barndominium floor plan? Click here to fill out our form, a member of our team will be in touch.
