Specifications
- Area: 3,042 sq. ft.
- Bedrooms: 2
- Bathrooms: 2.5+
- Stories: 2
- Garages: 3-4
Welcome to the gallery of photos for the Farmhouse-Inspired Barndo-Style House with Loft and RV-Friendly Garage. The floor plans are shown below:








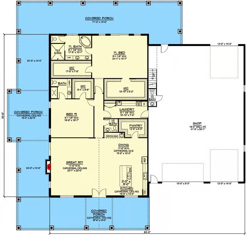
Blending farmhouse charm with barndominium functionality, this thoughtfully designed home features a 2,520 sq. ft. garage/workshop with versatile access.
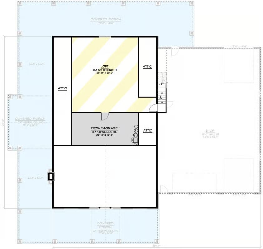
The left bay includes an 18′ x 8′ overhead door, while the right bay boasts front and rear RV-friendly 12′ x 14′ overhead doors, creating a true drive-through option. A staircase leads to a second-level loft, ideal for an office, storage, or mechanical space.
Step inside from the 14′-deep wraparound porch through elegant French doors and discover an open-concept great room, kitchen, and dining area.
Highlights include a cathedral ceiling, cozy fireplace, oversized kitchen island, and dedicated coffee bar—all designed for modern living and entertaining.
Toward the rear of the home, two spacious bedrooms each enjoy their own private bath. The luxurious master suite features dual walk-in closets, while an oversized laundry/mudroom with garage access adds everyday convenience.
Finished with durable corrugated metal siding, this farmhouse-inspired barndo is the perfect blend of rustic appeal, practicality, and modern amenities.
=> Looking for a custom Barndominium floor plan? Click here to fill out our form, a member of our team will be in touch.
