Specifications
- Area: 1,783 sq. ft.
- Bedrooms: 2
- Bathrooms: 2
- Stories:1
- Garages: 2
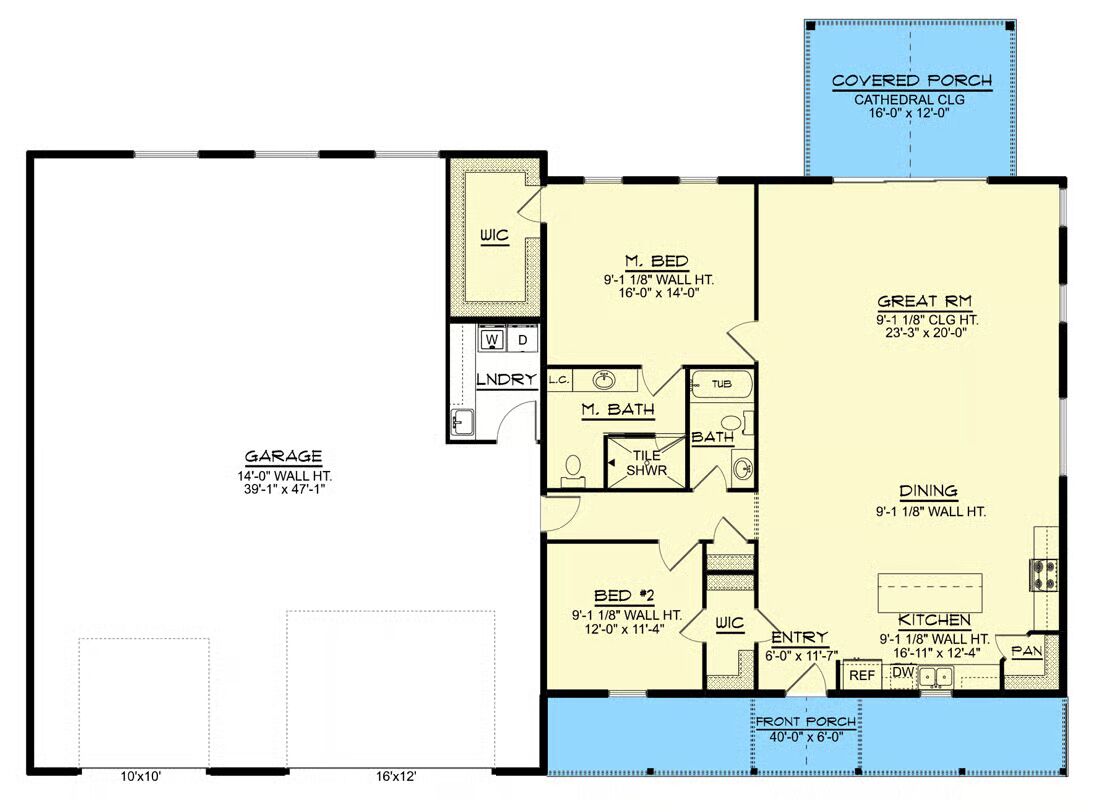
Welcome to the gallery of photos for the Barndominium with Oversized Garage / Workshop – 1783 Sq Ft. The floor plan is shown below:













Enjoy the perfect balance of home and workspace with this barndominium plan, thoughtfully designed with 2×6 exterior walls and corrugated metal siding for durability and modern appeal.
The left side of the home is dedicated to a 1,734 sq. ft. garage, complete with two oversized overhead doors (10′ x 10′ and 16′ x 12′), providing ample space for vehicles, equipment, or workshop needs.
The 1,783 sq. ft. living area offers a warm and inviting layout. A 6′-deep front porch welcomes you inside to an open concept kitchen, dining, and great room, perfect for daily living and entertaining.
From the great room, a multi-panel glass door opens to a covered rear porch, where you can relax while taking in the surrounding views.
The master suite features a spacious walk-in closet and a private bath with a tiled shower, while a second bedroom with its own walk-in closet sits across from a full bathroom, creating comfort and convenience for family or guests.
This design is ideal for homeowners seeking a stylish and functional barndominium lifestyle that blends living, working, and relaxation all under one roof.
=> Looking for a custom Barndominium floor plan? Click here to fill out our form, a member of our team will be in touch.
