Specifications
- Area: 2,523 sq. ft.
- Bedrooms: 2
- Bathrooms: 2.5
- Stories: 2
- Garages: 4
Welcome to the gallery of photos for the Barndominium with 4-Car Garage. The floor plans are shown below:





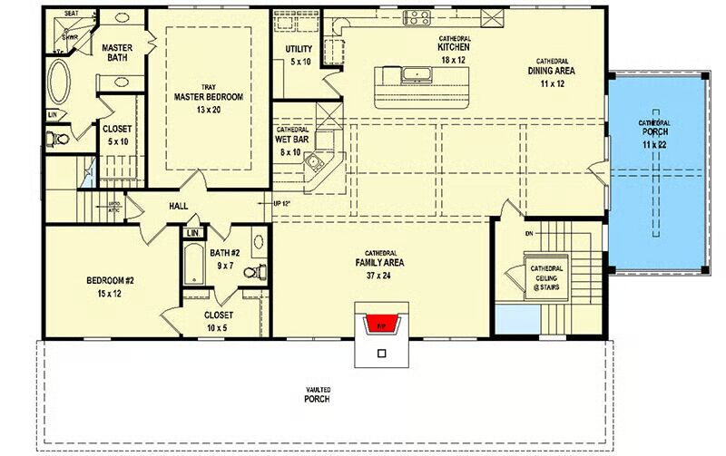
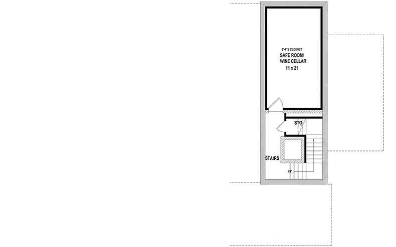
This multi-use barndominium offers exceptional flexibility, featuring a spacious four-car garage/workshop, two private home offices, and a unique wine cellar that doubles as a safe room.
A welcoming 12’-deep covered porch with an outdoor fireplace sets the tone for relaxed country living. The main level provides direct access to the garage/workshop, dual offices, and a convenient wash area.
Upstairs, soaring cathedral ceilings enhance the open-concept living space, complete with a cozy fireplace and wet bar—ideal for entertaining. Two bedrooms occupy the second level, including a luxurious primary suite with a tray ceiling, spa-like 5-fixture bath, and walk-in closet.
Thoughtfully designed with style and function, this home blends rustic character with modern convenience.
=> Looking for a custom Barndominium floor plan? Click here to fill out our form, a member of our team will be in touch.
