Specifications
- Area: 1,260 sq. ft.
- Bedrooms: 2
- Bathrooms: 2
- Stories: 1
- Garages: 2
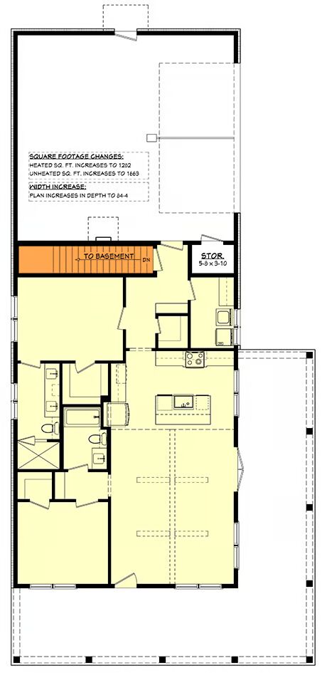
Welcome to the gallery of photos for the Barndominium-Style Farmhouse with Wrap Around Porch and Great Room – 1260 Sq Ft. The floor plans are shown below:








This barndominium-style home offers 2 bedrooms, 2 bathrooms, and 1,260 sq. ft. of heated living space, designed with conventional wood framing and 2×6 exterior walls.
Outdoor living is a highlight, with a 10′-deep porch spanning the front (400 sq. ft.) and wrapping along the side (315 sq. ft.), perfect for relaxing and entertaining.
Inside, the thoughtful layout places both bedrooms on the left side of the home, each featuring a private bath and walk-in closet. The main living areas showcase an open-concept design with vaulted ceilings, expansive windows, and a seamless flow between the living room and dining area.
The kitchen is designed for both style and function, with a large eat-at island and a spacious walk-in pantry. An oversized garage provides abundant parking and storage, with convenient access to a lofted storage space above the main living area.
=> Looking for a custom Barndominium floor plan? Click here to fill out our form, a member of our team will be in touch.
