4-Bedroom Contemporary Barndominium House with Partially Finished Walkout – 3076 Sq Ft (Floor Plan)

16 Shares

Specifications

  • Area: 3,076 sq. ft.
  • Bedrooms: 4
  • Bathrooms: 1
  • Stories: 1

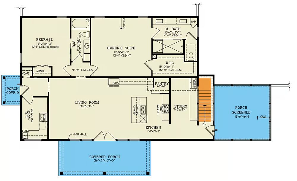
Welcome to the gallery of photos for the Contemporary Barndominium House with Partially Finished Walkout – 3076 Sq Ft. The floor plans are shown below:

Main level floor plan
Basement level floor plan

Buy This Plan

Sleek and expansive, this Barndominium highlights its modern farmhouse appeal with a large glass sunroom extension.
This modern Barndominium-style house presents a stunning blend of white siding and dark trim under a colorful twilight sky.
The clean lines and contrasting textures of this bright Barndominium are perfectly framed by a beautiful blue sky.
This elegant Barndominium glows with warm exterior lighting, contrasting beautifully with the pink and purple hues of a sunset.
An inviting angle showcases the deep porch and gabled roofline of this stylish modern Barndominium at dusk.
A gorgeous, contemporary Barndominium features a flat-roof profile, sleek lines, and a warm, inviting facade against the evening backdrop.
Enjoy the bright day with this wide-view Barndominium, showcasing a striking mix of white board-and-batten and natural wood accents.
The great room features a soaring ceiling, expansive windows, and a comfortable, contemporary seating arrangement perfect for gatherings.
Light pours into this serene living room, highlighting the plush, neutral furnishings and wide-plank wood flooring.
The contemporary kitchen features a bold black and white island with waterfall edges and chic wooden barstools.
A bright and airy farmhouse kitchen combines white subway tile, open shelving, and a dramatic black vent hood.
The cozy master bedroom offers a sophisticated retreat with a tufted headboard, soft neutral linens, and a mix of light wood tones.
Indulge in relaxation with this elegant bathroom’s freestanding soaking tub set against a crisp white subway tile wall.
A luxurious bathroom boasts shiplap walls and a long, light wood vanity, blending modern and farmhouse elegance.
This highly functional laundry room maximizes storage with dark cabinetry, brass hardware, and bright open shelving.

Buy This Plan

This contemporary single-story barndominium showcases a sleek, minimalist design defined by flat rooflines, clean geometry, and striking visual balance.

The exterior blends crisp white vertical siding with warm wood accents, creating an elegant contrast that feels both modern and inviting.

Expansive floor-to-ceiling windows bathe the interior in natural light, seamlessly connecting the home to its lush surroundings and offering picturesque views from every angle.

At dusk, architectural lighting enhances the home’s sharp lines and textures, emphasizing its modern sophistication and elevating its curb appeal.

A welcoming front porch framed by wooden pillars and stone accents provides the perfect touch of rustic warmth, merging modern design with natural charm.

Crafted with conventional 2×6 wood framing, this barndominium-style plan perfectly embodies simplicity, functionality, and timeless modern living.

=> Looking for a custom Barndominium floor plan? Click here to fill out our form, a member of our team will be in touch.

💸 80% of Barndo Budgets Blow Up in Planning
Get the $7 tool that helps you avoid delays, overbidding & costly mistakes.
Grab the $7 Planner
16 Shares
See also  4-Bedroom Two-Story Barndominium-Style Farmhouse with Large Loft - 2417 Sq Ft (Floor Plan)

Lisa Young

Lisa Young, writer and construction pro, crafts custom homes. Captivated by barndominiums for four years, she shares insights and advice in engaging articles, empowering readers to create unique living spaces mirroring their aspirations. Join her exciting journey exploring barndominium living.

Recent Posts