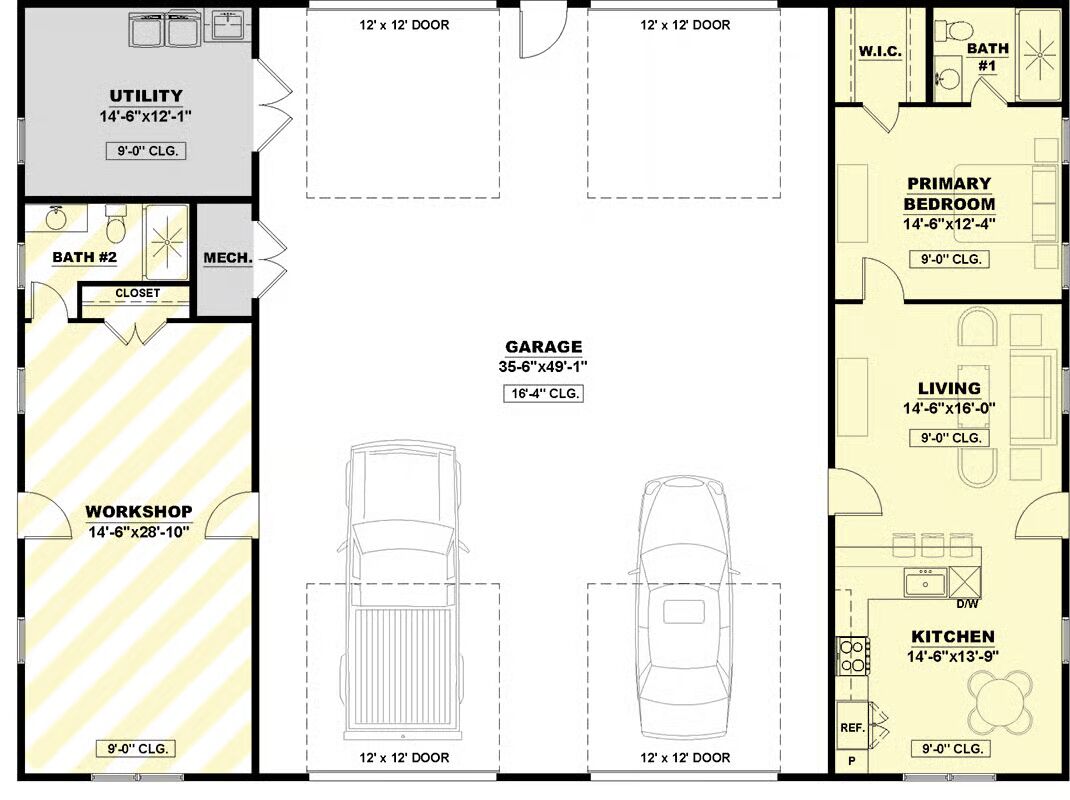
Specifications
- Area: 1,027 sq. ft.
- Bedrooms: 1
- Bathrooms: 2
- Stories: 1
- Garages: 2-4
Welcome to the gallery of photos for the New American House with RV Garage and Workshop. The floor plan is shown below:






Discover exceptional versatility and modern comfort in this 1,027 sq. ft. New American residence, featuring 1 bedroom, 2 full bathrooms, and an extraordinary 1,900 sq. ft. attached RV garage designed to accommodate 2 to 4 vehicles.
A crisp white board-and-batten façade paired with a dark metal roof creates a striking exterior presence.
Inside, the home is thoughtfully crafted for efficiency and ease, with 9-foot ceilings enhancing the open, airy feel throughout the main living areas.
The inviting main level seamlessly blends a comfortable living room, a well-appointed kitchen, and an intimate dining area—ideal for relaxed daily living or small gatherings. A dedicated main-level laundry room further elevates everyday convenience.
The first-floor primary suite offers a peaceful and private retreat, complete with its own full bathroom and generous space to unwind.
One of the standout features of this plan is the 440 sq. ft. workshop, perfectly integrated into the layout to support hobbies, projects, or professional use.
The attached RV garage boasts an impressive 16′ 4″ ceiling height, easily accommodating oversized vehicles, recreational equipment, or multiple cars—an unparalleled asset for adventurers and collectors alike.
The exterior enhances curb appeal with charming, thoughtful landscaping, including a welcoming stone path set against a lush green lawn, creating an inviting approach and a serene outdoor setting.
Perfect for full-time living, a vacation property, or a functional home base for RV enthusiasts, this plan blends modern efficiency with practical luxury.
=> Looking for a custom Barndominium floor plan? Click here to fill out our form, a member of our team will be in touch.
