Specifications
- Area: 729 sq. ft.
- Bedrooms: 1
- Bathrooms: 1
- Stories: 1
- Garages: 2-4
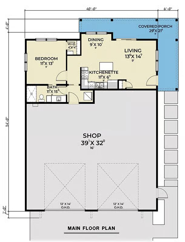
Welcome to the gallery of photos for the Barndominium ADU with 725 Sq Ft 1-Bed Apartment and 2-Bay Garage Workshop. The floor plan is shown below:





This modern farmhouse-style barndominium ADU combines versatile garage space with a comfortable 1-bedroom apartment, offering the perfect live-work setup or guest retreat.
At the front, an oversized 2-bay workshop garage delivers 1,375 square feet of unfinished space, featuring two RV-friendly bays with 12′ x 14′ overhead doors and soaring 16′ ceilings—ideal for storage, hobbies, or large equipment.
Built with durable 2×6 conventional wood framing, this design balances strength and efficiency.
Behind the garage, a 725-square-foot apartment provides open-concept living with a seamless flow between the living room, breakfast nook, and efficient kitchen with prep island.
The private bedroom sits at the far end of the unit, while a 3/4 bath—conveniently accessed by pocket door—also connects to the mudroom entry for guest use.
A side entry and a charming wraparound covered porch add to the apartment’s appeal, making this design a flexible solution for extended family, rental income, or a private retreat.
=> Looking for a custom Barndominium floor plan? Click here to fill out our form, a member of our team will be in touch.
