Specifications
- Area: 1,980 sq. ft.
- Bedrooms: 3
- Bathrooms: 2.5
- Stories: 1
- Garages: 3
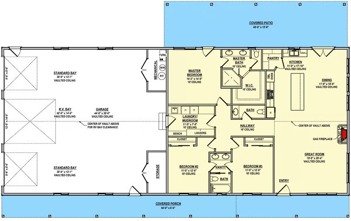
Welcome to the gallery of photos for the Barndominium-Style House with Vaulted RV Garage – 1980 Sq Ft Home and 1780 Sq Ft Garage. The floor plan is shown below:









This barndominium-style home offers 1,980 sq. ft. of heated living space, with 3 bedrooms and 2.5 bathrooms, designed with conventional wood framing and 2×6 exterior walls for durability and efficiency.
A highlight of this plan is the massive vaulted RV-friendly garage, featuring a central bay with a 12′ x 14′ overhead door flanked by two 9′ x 9′ bays.
Together, they provide an impressive 1,780 sq. ft. of parking and workshop space. For added convenience, the garage includes two rear wall closets—one dedicated to storage and the other to mechanical systems.
=> Looking for a custom Barndominium floor plan? Click here to fill out our form, a member of our team will be in touch.
