Specifications
- Area: 498 sq. ft.
- Bedrooms: 1
- Bathrooms: 1
- Stories: 2
- Garages: 3
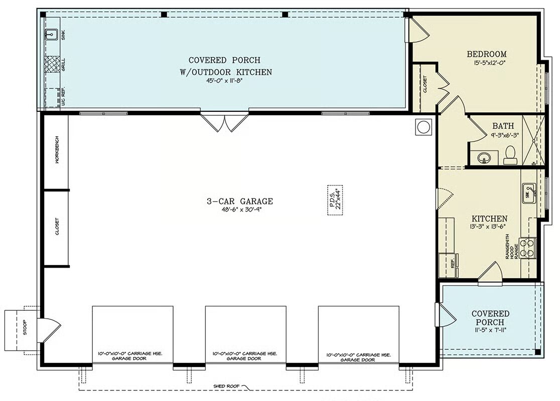
Welcome to the gallery of photos for the 3-Car Modern Farmhouse Garage with 500 Sq Ft 1-Bed Apartment on Main Level – 1555 Sq Ft. The floor plan is shown below:













This garage apartment plan offers the perfect blend of functionality and comfort with a 500 sq. ft. 1-bedroom, 1-bath apartment above 1,555 sq. ft. of garage space.
Enjoy outdoor living on the expansive 45′ x 11’8″ covered porch with a built-in outdoor kitchen, ideal for entertaining or relaxing in the fresh air.
The garage is designed with three matching 10′ x 10′ overhead doors, providing ample access for vehicles, boats, or equipment. Inside, a workbench and storage closet line the left wall, helping keep tools and gear neatly organized.
=> Looking for a custom Barndominium floor plan? Click here to fill out our form, a member of our team will be in touch.
