Specifications
- Area: 2,197 sq. ft.
- Bedrooms: 3-4
- Bathrooms: 3
- Stories: 1
- Garages: 2
Welcome to the gallery of photos for the Modern Country Barndominium House with Split Beds and Workshop Garage. The floor plans are shown below:
















Discover refined country living in this 2,197 sq. ft. modern barndominium, offering 3 bedrooms, 3 bathrooms, and an impressive 2,383 sq. ft. side-entry 2-car garage—perfect for those seeking space, style, and versatility.
Step inside to an inviting open-concept living area, where the living room, dining space, and gourmet kitchen flow effortlessly beneath a soaring cathedral ceiling. A versatile den located near the entry provides the ideal setting for a home office, study, or quiet retreat.
The chef-inspired kitchen features a central island, abundant workspace, and a butler’s walk-in pantry, seamlessly connecting to the spacious dining area.
Just beyond, a mudroom and dedicated laundry room offer direct access to the oversized garage, ensuring everyday organization and convenience.
The main-floor master suite serves as a serene retreat, complete with a luxurious ensuite bath and a generous walk-in closet. Two additional bedrooms are thoughtfully separated across the home, each with easy access to a full bath—perfect for family or overnight guests.
A standout feature of this plan is the 2,383 sq. ft. attached garage, boasting a dramatic 14-foot cathedral ceiling and offering outstanding flexibility for vehicle storage, a workshop, or recreational space.
Outdoor living is beautifully integrated with a charming covered front porch, a 285 sq. ft. rear covered porch extending from the living room, and a 144 sq. ft. patio off the dining area—ideal for al fresco meals, morning coffee, or relaxing in the fresh air.
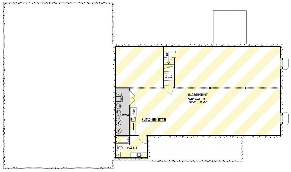
The home also includes a 9-foot-ceiling unfinished basement offering tremendous potential for future expansion.
With a partially completed kitchenette and full bath already in place, this space is primed for an entertainment area, guest suite, or bonus living quarters as your lifestyle evolves.
This modern country barndominium blends spacious design, elegant comfort, and endless possibilities—perfectly suited for today’s living.
=> Looking for a custom Barndominium floor plan? Click here to fill out our form, a member of our team will be in touch.
