Modern Barndominium House with Wrap-Around Porch and Vaulted Great Room (Floor Plan)

0 Shares

Specifications

  • Area: 2,191 sq. ft.
  • Bedrooms: 3
  • Bathrooms: 3
  • Stories: 2
  • Garages: 3

Welcome to the gallery of photos for the Modern Barndominium House with Wrap-Around Porch and Vaulted Great Room. The floor plans are shown below:

Striking Barndominium profile showcasing a prominent stone chimney and expansive porch for ultimate curb appeal.
A welcoming gable-roof Barndominium featuring a deep wrap-around porch perfect for relaxed outdoor living.
Contemporary Barndominium angles with white vertical siding and dark trim, offering a clean, modern farmhouse look.
The two-car garage with rustic wooden doors seamlessly integrates with this cozy Barndominium design.
The vaulted living room boasts exposed beams, a stunning stone fireplace, and access to the outdoors via sliding glass doors.
Grand stone fireplace serves as the centerpiece in this bright, open living space with a soaring cathedral ceiling.
Open-concept living and dining area highlighted by a dramatic staircase and loft overlooking the main floor.
Gourmet kitchen featuring a shiplap ceiling, open shelving, and a large marble-top island for casual dining.
The rustic kitchen island and sleek appliances blend beautifully under stylish pendant lighting.
A luxurious master suite featuring a four-poster bed and subtle floral accents for a touch of elegance.
Sleek master bathroom offering a freestanding tub and an ultra-modern glass-enclosed dual shower system.
Double vanity with natural wood cabinetry and a chic soaking tub create a serene spa-like retreat.
Cozy bedroom defined by a black wrought-iron bed, geometric rug, and vertical shiplap accent wall.
An intimate seating area in the loft with a vaulted ceiling and modern, organic furnishings.
A tranquil guest bedroom offering natural light, dark metal accents, and a soft, inviting color palette.
Highly functional laundry room with ample gray cabinetry, marble-look countertops, and a utility sink.
Mudroom area with sleek vertical paneling, hooks, and built-in cabinetry providing smart storage solutions.

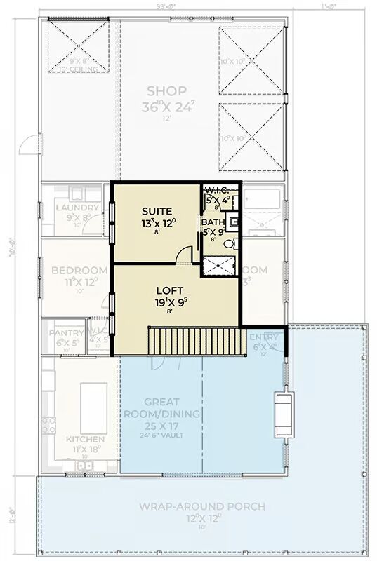
Discover modern country living at its finest in this striking Barndominium-style home, offering 2,191 sq. ft. of heated living space with 3 bedrooms, 3 full bathrooms, and a spacious 950 sq. ft. attached 3-car garage.

Step inside to an awe-inspiring open-concept great room and dining area, highlighted by a dramatic two-story vaulted ceiling soaring to 24’6″. Expansive windows flood the space with natural light, enhancing the home’s airy, contemporary appeal.

The well-designed kitchen seamlessly integrates with the great room, offering both style and practicality with a generous pantry and plenty of workspace. A dedicated mudroom and main-level laundry room sit just off the garage entry, creating an efficient flow for daily routines.

Top 5 Mistakes DIY Barndo Builders Make!
Most self-builders lose $10K+ before breaking ground. Avoid all 5 with this $7 planner.
Grab the Planner

The main-level master suite serves as a private sanctuary, featuring a serene bedroom, an elegant en-suite bath, and a large walk-in closet. A second spacious bedroom and full bath complete the main floor.

Upstairs, a private third bedroom suite with its own walk-in closet and full bath accompanies a flexible loft overlooking the great room, ideal for an office, lounge, or creative space.

Outside, the attached 3-car garage includes a dedicated shop area, providing exceptional room for vehicles, projects, and hobbies.

Embrace outdoor living on the expansive 869 sq. ft. wrap-around porch, the perfect setting for morning coffee, relaxing evenings, and gatherings with family and friends.

See also  3-Bedroom Barndomiumum House with Split Bedrooms - 1754 Sq Ft (Floor Plan)

=> Looking for a custom Barndominium floor plan? Click here to fill out our form, a member of our team will be in touch.

💸 80% of Barndo Budgets Blow Up in Planning
Get the $7 tool that helps you avoid delays, overbidding & costly mistakes.
Grab the $7 Planner
0 Shares

Lisa Young

Lisa Young, writer and construction pro, crafts custom homes. Captivated by barndominiums for four years, she shares insights and advice in engaging articles, empowering readers to create unique living spaces mirroring their aspirations. Join her exciting journey exploring barndominium living.

Recent Posts