Specifications
- Area: 2,311 sq. ft.
- Bedrooms: 3-4
- Bathrooms: 3.5
- Stories: 2
- Garages: 2
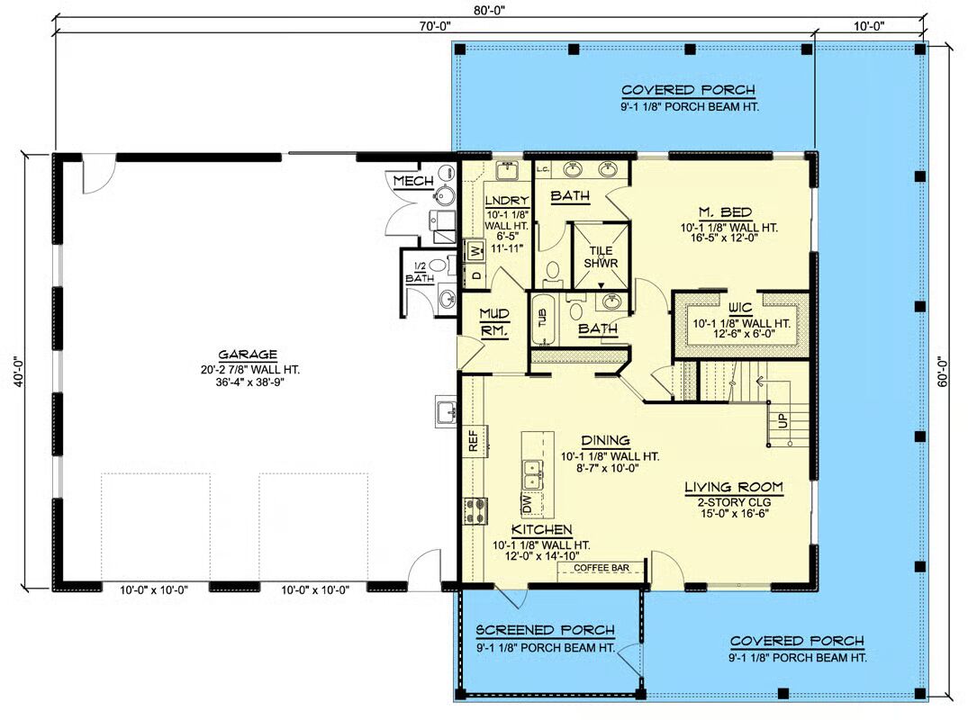
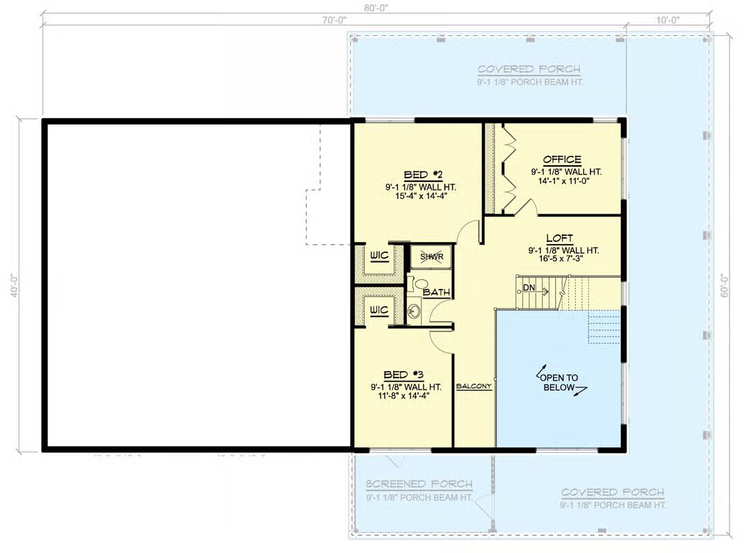
Welcome to the gallery of photos for the Country Barndominium with Screened Porch and Home Office – 2311 Sq Ft. The floor plans are shown below:








This charming 2-story Country Barndominium offers the perfect blend of comfort and functionality with 2,311 sq. ft. of living space paired with a 1,480 sq. ft. garage/workshop.
A 9-foot-deep wraparound porch sets the tone for timeless farmhouse appeal.
Inside, the open-concept floor plan highlights a gourmet eat-in kitchen with island, coffee bar, and screened porch access, seamlessly flowing into the great room and dining area.
The main-level master suite provides a private retreat, featuring sliding-door porch access, a spa-inspired 4-fixture bath, and a spacious walk-in closet.
Upstairs, a cozy loft leads to two additional bedrooms and a dedicated home office, creating the perfect layout for family and work-life balance.
The oversized garage is designed for versatility, with dual overhead doors on the front elevation, a rear barn door, and added conveniences like a powder bath and utility sink.
Finished with 24″ vertical board and batten cement siding, this home exudes lasting durability and classic country style.
=> Looking for a custom Barndominium floor plan? Click here to fill out our form, a member of our team will be in touch.
