Specifications
- Area: 2,840 sq. ft.
- Bedrooms: 3-4
- Bathrooms: 2.5+
- Stories: 2
- Garages: 4
Welcome to the gallery of photos for the Barndominium-Style with Massive Garage, Wraparound Porch and 2-tory Living Room – 2840 Sq Ft. The floor plans are shown below:


Buy This Plan







This exclusive barndominium-style home blends modern country living with incredible functionality, combining a spacious residence with a massive 2,229 sq. ft. garage/workshop.
A wraparound porch welcomes you in and extends your living outdoors, perfect for relaxing evenings or entertaining guests.
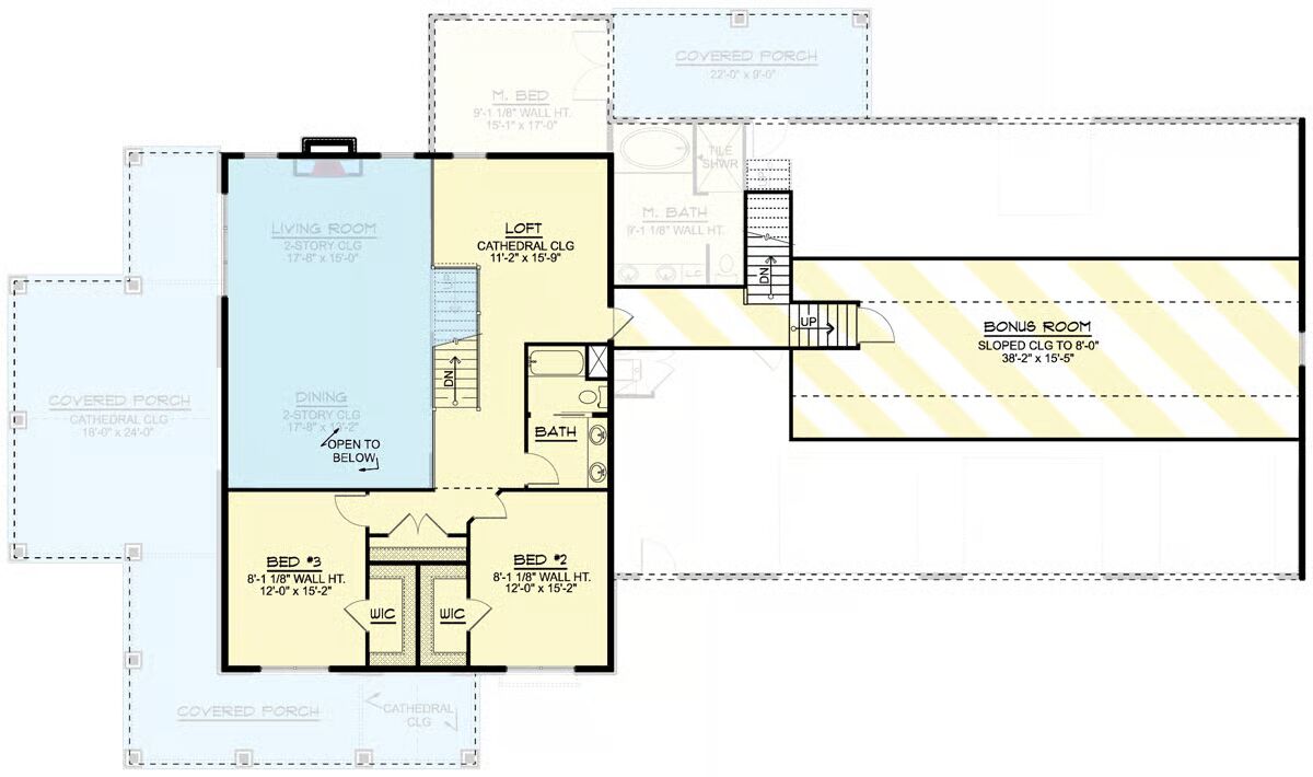
Inside, soaring two-story ceilings crown the open-concept living and dining areas, creating a bright and airy heart of the home. The adjoining kitchen offers generous prep and gathering space, while a quiet den nearby provides the ideal retreat for work or relaxation.
The main-level primary suite is a private haven with a spa-inspired 5-fixture bath, walk-in closet, and direct access to the laundry room for convenience.
Upstairs, two mirror-image bedrooms share a full bath, complemented by a versatile loft that’s perfect as a playroom, study space, or second living area.
The oversized garage is a standout feature, offering space for a workshop, storage, or large vehicles with an overhead door designed for RVs, boats, or lawn equipment.
Built with 2×6 exterior walls, this home delivers durability and timeless barndominium appeal.
=> Looking for a custom Barndominium floor plan? Click here to fill out our form, a member of our team will be in touch.
