Barndominium-Style Modern Farmhouse with Massive Shop Garage and Loft (Floor Plan)

1 Shares

Specifications

  • Area: 2,558 sq. ft.
  • Bedrooms: 4
  • Bathrooms: 2.5
  • Stories: 2
  • Garages: 1-3

Welcome to the gallery of photos for the Barndominium-Style Modern Farmhouse with Massive Shop Garage and Loft. The floor plans are shown below:

A stunning lakeside Barndominium featuring bold black siding and elegant timber accents mirrored in the water.
Experience a grand welcome with this Barndominium’s soaring timber-framed entryway and sleek gabled roofline.
This architectural masterpiece blends rustic stone textures with contemporary dark steel for the ultimate curb appeal.
Expansive glass garage doors and warm wood finishes highlight the functional beauty of this modern barn-style home.
Sunset glows against the dark vertical siding, showcasing the clean lines and dramatic silhouette of this country retreat.
This striking Barndominium blends rustic timber accents with a sleek, modern black exterior to create the ultimate mountain-side retreat.
The heart of the home features an airy, open-concept living space where soaring wood-beamed ceilings meet contemporary industrial finishes.
Oversized glass garage doors and twin cupolas add iconic farmhouse character to this bold, dark-toned Barndominium silhouette.
Experience seamless flow in this open-concept living space that perfectly balances a gourmet kitchen with an airy loft above.
This sleek, modern kitchen serves as the heart of the home, featuring premium finishes and a spacious island for effortless entertaining.
Bathed in natural light, this soaring great room invites the outdoors in through stunning oversized windows.
Relax in style within a living area defined by elegant marble accents and sophisticated contemporary furnishings.
Cozy up by the floor-to-ceiling marble fireplace, the ultimate focal point for luxury and comfort.
This versatile loft retreat provides a quiet, sun-drenched corner for reading or creative inspiration.
Wake up to serene views in a primary suite designed as a minimalist sanctuary of peace.
Symmetry meets style in this master bedroom, highlighted by designer lighting and picturesque window framing.
Indulge in a spa-like experience within this chic bathroom featuring high-end gold fixtures and clean, modern lines.
Every detail matters in this guest room, where soft textures and classic French doors create a warm welcome.
Elegant drapery and soft lighting transform this bedroom into a cozy, high-design haven.
Organize your life in style with this custom walk-in closet featuring warm wood tones and ample integrated storage.

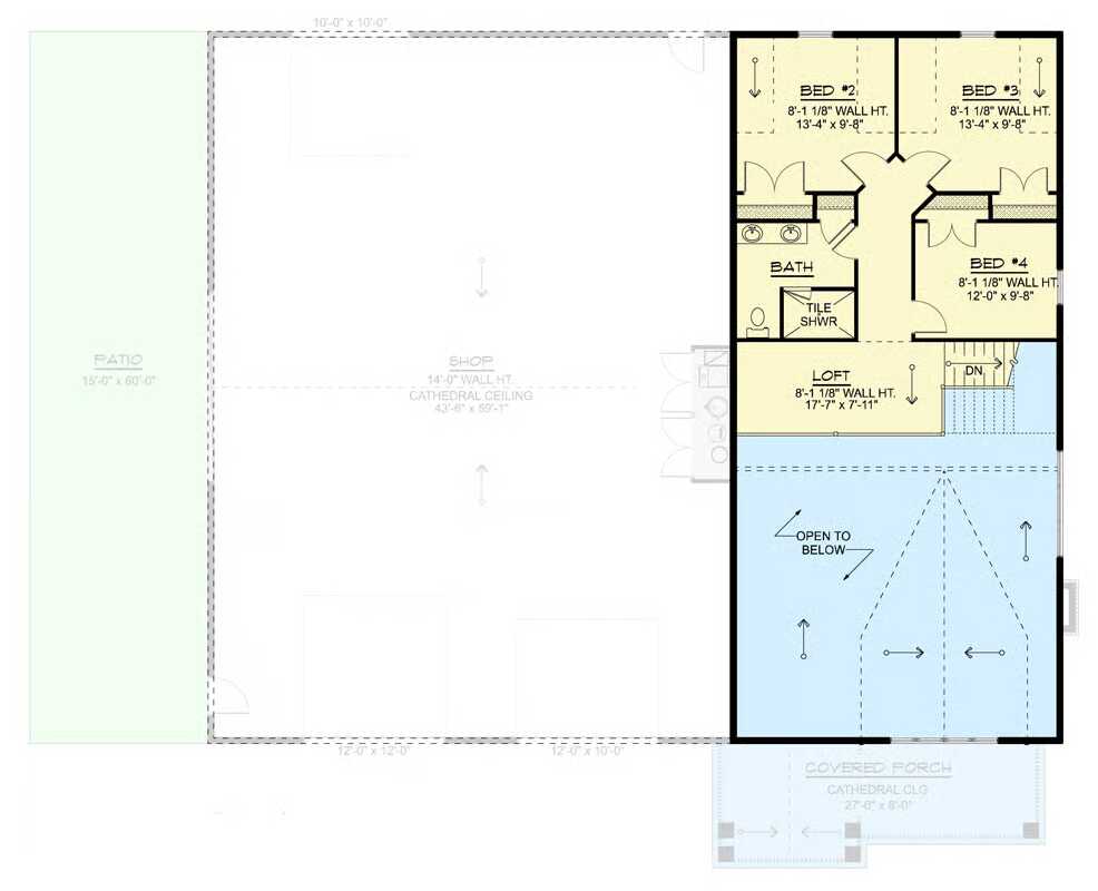
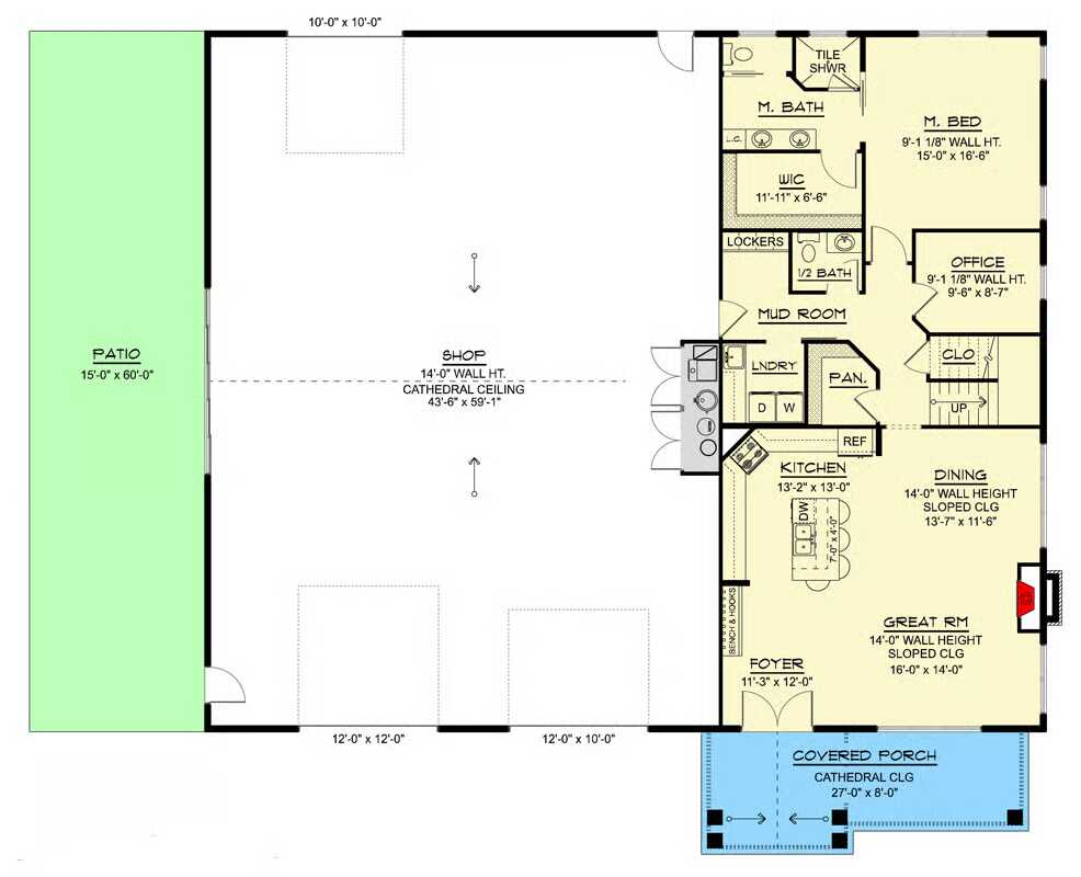
Experience 2,558 square feet of refined living in this beautifully designed four-bedroom, two-and-a-half-bath Barndominium-style Modern Farmhouse.

Perfectly paired with an impressive 2,655-square-foot integrated shop—ideal for hobbyists, entrepreneurs, or anyone seeking exceptional flexibility.

A welcoming covered porch leads into an inviting foyer that opens directly to the expansive great room. Just off the main living area, a dedicated home office provides a quiet and convenient workspace without sacrificing connection to the heart of the home.

The open-concept layout seamlessly blends the great room, dining area, and gourmet kitchen, which features a large center island, walk-in butler’s pantry, and a cozy breakfast nook.

A soaring sloped ceiling crowns the space, enhancing natural light and creating an airy, spacious atmosphere ideal for everyday living and entertaining.

The main-level primary suite serves as a private retreat, offering a generous walk-in closet and an elegant ensuite bath. Upstairs, three additional bedrooms and a full bathroom are thoughtfully arranged to provide comfort and privacy for family or guests.

Beyond the living spaces, the expansive shop area boasts a striking 14-foot cathedral ceiling and delivers unmatched versatility—perfect for vehicle storage, a professional workshop, or a creative studio.

Top 5 Mistakes DIY Barndo Builders Make!
Most self-builders lose $10K+ before breaking ground. Avoid all 5 with this $7 planner.
Grab the Planner

Outdoor living is equally inviting, with a charming covered front porch and a large patio extending from the shop, offering ideal spaces for entertaining or enjoying peaceful mornings outdoors.

See also  2-Bedroom Barndominium-Style House with Covered Patio and 3-Car Garage (Floor Plans)

=> Looking for a custom Barndominium floor plan? Click here to fill out our form, a member of our team will be in touch.

đź’¸ 80% of Barndo Budgets Blow Up in Planning
Get the $7 tool that helps you avoid delays, overbidding & costly mistakes.
Grab the $7 Planner
1 Shares

Lisa Young

Lisa Young, writer and construction pro, crafts custom homes. Captivated by barndominiums for four years, she shares insights and advice in engaging articles, empowering readers to create unique living spaces mirroring their aspirations. Join her exciting journey exploring barndominium living.

Recent Posts