Specifications
- Area: 2,840 sq. ft.
- Bedrooms: 2-3
- Bathrooms: 3.5+
- Stories: 2
- Garages: 3
Welcome to the gallery of photos for the Barndominium-style Home with RV Bay and Unfinished Lower Level – 2840 Sq Ft. The floor plans are shown below:









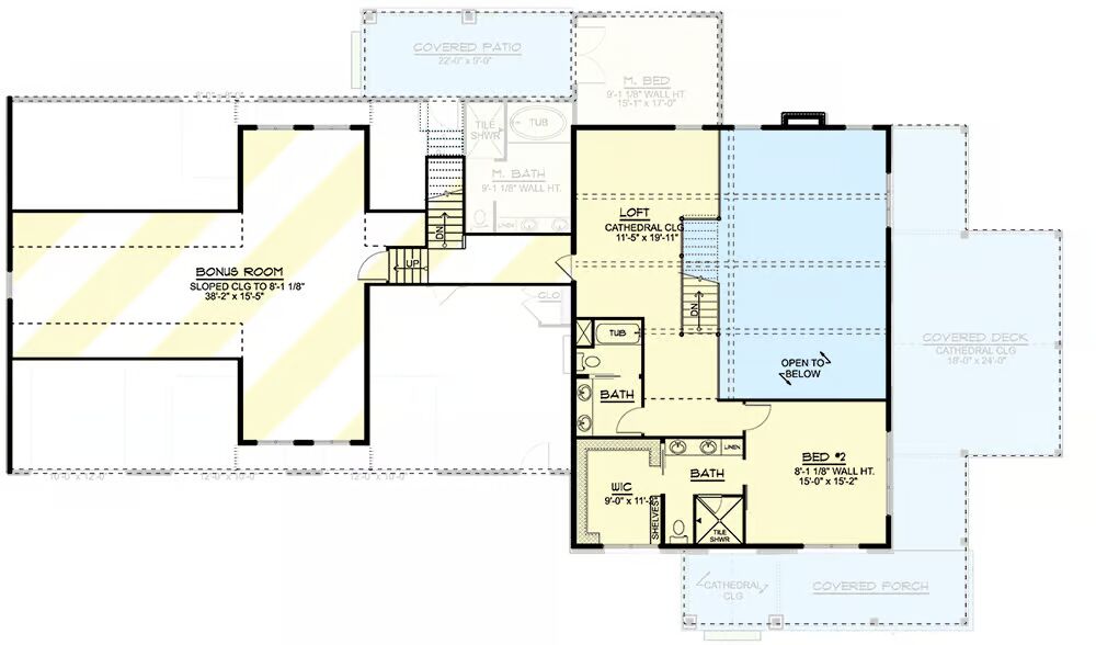
This thoughtfully designed barndominium-style home combines rustic charm with modern functionality, offering a seamless blend of living and workshop space.
The home’s inviting wraparound porch extends the living area outdoors, while inside, the heart of the home features a dramatic two-story ceiling above the living and dining rooms.
A spacious kitchen makes entertaining effortless, complemented by a quiet den for more private moments.
The main-level master suite offers a luxurious retreat with a 5-fixture bath and a walk-in closet that connects directly to the laundry room.
Upstairs, you’ll find a second bedroom with dual vanities and a walk-in closet, a cozy loft overlooking the great room, and a second full bath—ideal for guests or family.
A generous bonus room with its own stairway and direct exterior access provides flexible expansion options.
The home also includes an impressive 2,229 sq. ft. garage, complete with an RV bay, two 12′ by 10′ overhead doors, and ample workshop space. For even more potential, the 1,896 sq. ft. basement offers room to grow.
Designed with conventional 2×6 framing, this home is as durable as it is versatile, perfectly suited for those seeking the barndominium lifestyle with both style and substance.
=> Looking for a custom Barndominium floor plan? Click here to fill out our form, a member of our team will be in touch.
