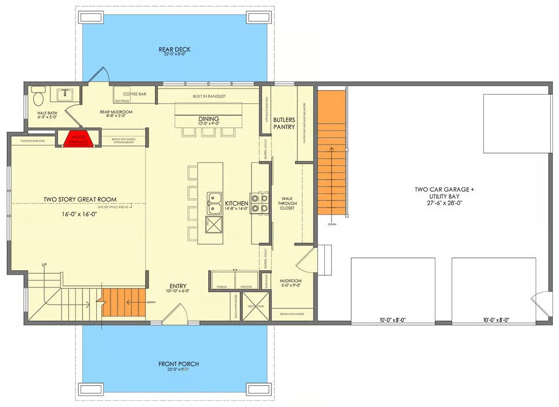
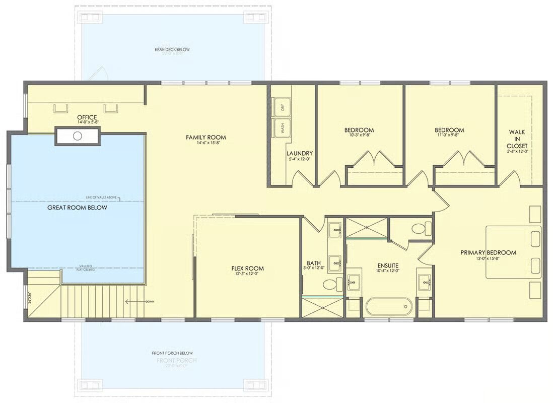
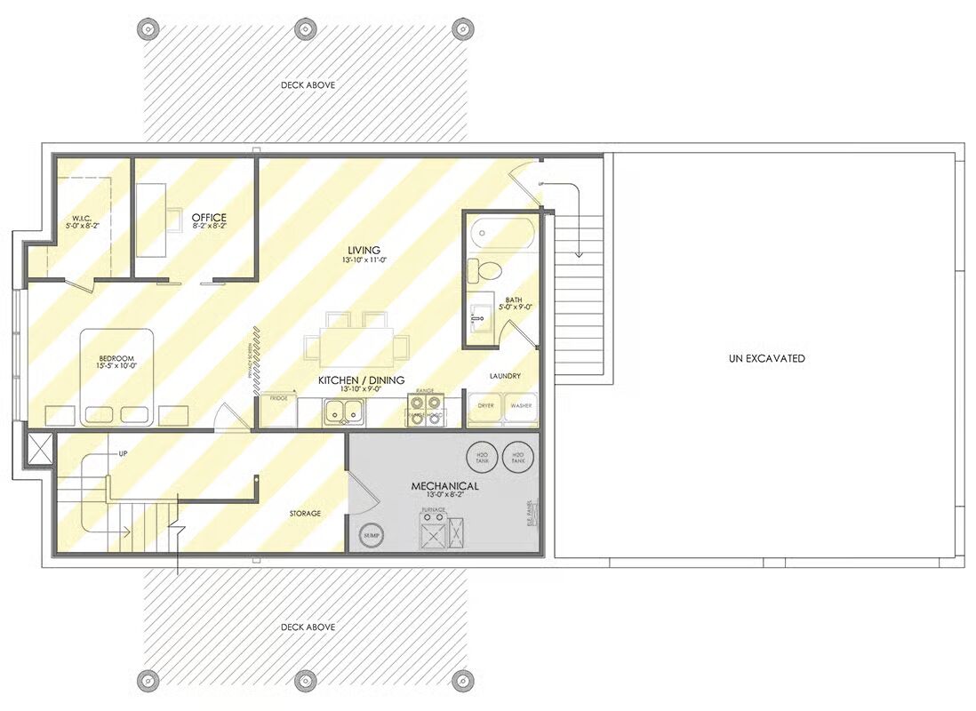
Specifications
- Area: 2,549 sq. ft.
- Bedrooms: 3-4
- Bathrooms: 2.5-3.5
- Stories: 2
- Garages: 2
Welcome to the gallery of photos for the Barndominium House with 2-Story Great Room – 2549 Sq Ft. The floor plans are shown below:



Buy This Plan


This barndominium-style home offers 2,549 sq. ft. of heated living space, featuring 3 bedrooms, 2.5 bathrooms, and an 812 sq. ft. 3-car garage.
Designed with both comfort and functionality in mind, this plan combines spacious interiors with modern convenience, making it ideal for family living and entertaining.
=> Looking for a custom Barndominium floor plan? Click here to fill out our form, a member of our team will be in touch.
