Specifications
- Area: 4,528 sq. ft.
- Units: 2
Welcome to the gallery of photos for the Barndominium House with 2-Bed Apartment Above Garage – 4528 Sq Ft. The floor plans are shown below:


Buy This Plan













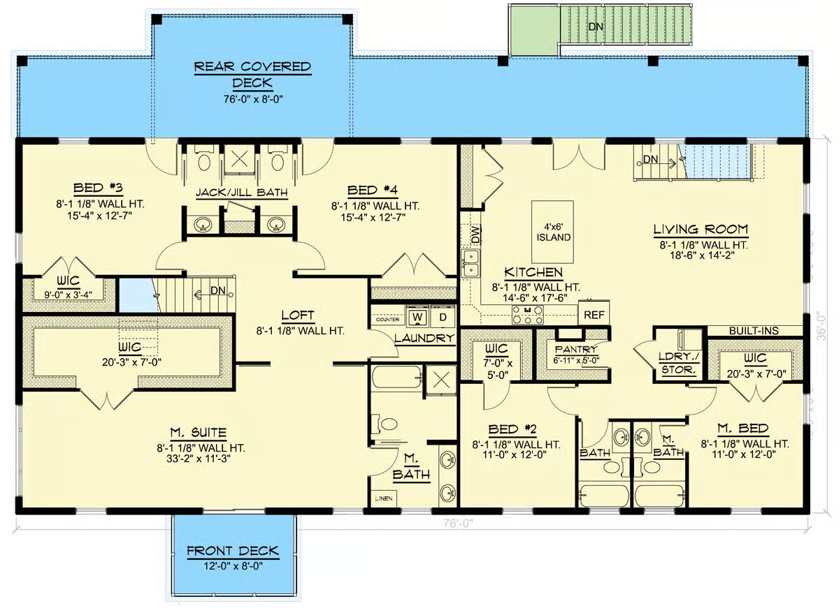
This expansive 4,528 sq. ft. Modern Farmhouse blends classic Barndominium-inspired charm with versatile modern living, offering 7 bedrooms, 7 full bathrooms, and an 864 sq. ft. three-car side-entry garage.
Designed with multi-generational living in mind, this home provides flexible spaces and private suites that cater perfectly to extended families or an attached apartment setup.
Step inside to a bright, open main level featuring 9-foot ceilings and an airy layout where the living room, dining area, and gourmet kitchen flow seamlessly together.
The kitchen impresses with a large island and raised bar, ideal for casual dining and entertaining. A home office, mudroom, and laundry room add everyday convenience, keeping the home organized and functional.
The main-floor primary suite serves as a luxurious retreat, offering a spa-inspired bath and walk-in closet, while a secondary bedroom with a private full bath provides a comfortable space for guests or family.
Upstairs, a second master suite features its own walk-in closet and ensuite bath, along with a spacious living room, full kitchen with island, and second laundry area—creating a fully independent living space ideal for in-laws, guests, or rental potential.
Three additional bedrooms, including a Jack-and-Jill suite, and a versatile loft area complete the upper level.
Outdoor living is embraced throughout the design, with covered front and rear porches on the main level and expansive upper-level decks offering space to relax, entertain, and take in the views.
This Modern Farmhouse delivers the perfect combination of elegance, comfort, and flexibility, making it an ideal home for large or multi-generational families seeking both connection and privacy.
=> Looking for a custom Barndominium floor plan? Click here to fill out our form, a member of our team will be in touch.
