6-Bedroom Modern Barndominium with Wraparound Porch and Loft – 6,169 Sq Ft (Floor Plan)

0 Shares

Specifications

  • Area: 6,169 sq. ft.
  • Bedrooms: 6
  • Bathrooms: 4.5+
  • Stories: 2

Welcome to the gallery of photos for the Modern Barndominium with Wraparound Porch and Loft – 6,169 Sq Ft. The floor plans are shown below:

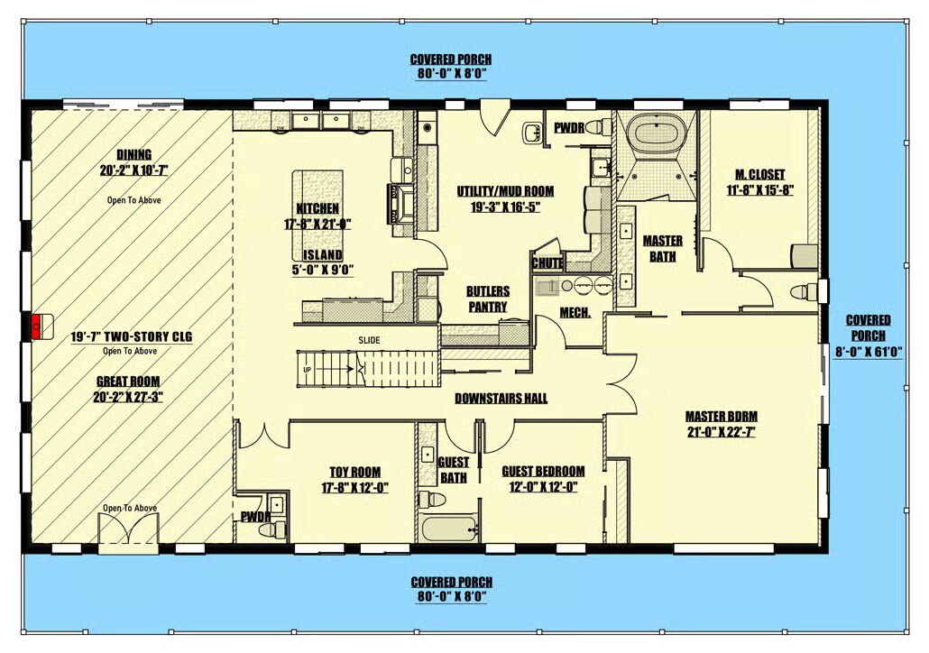
Main level floor plan
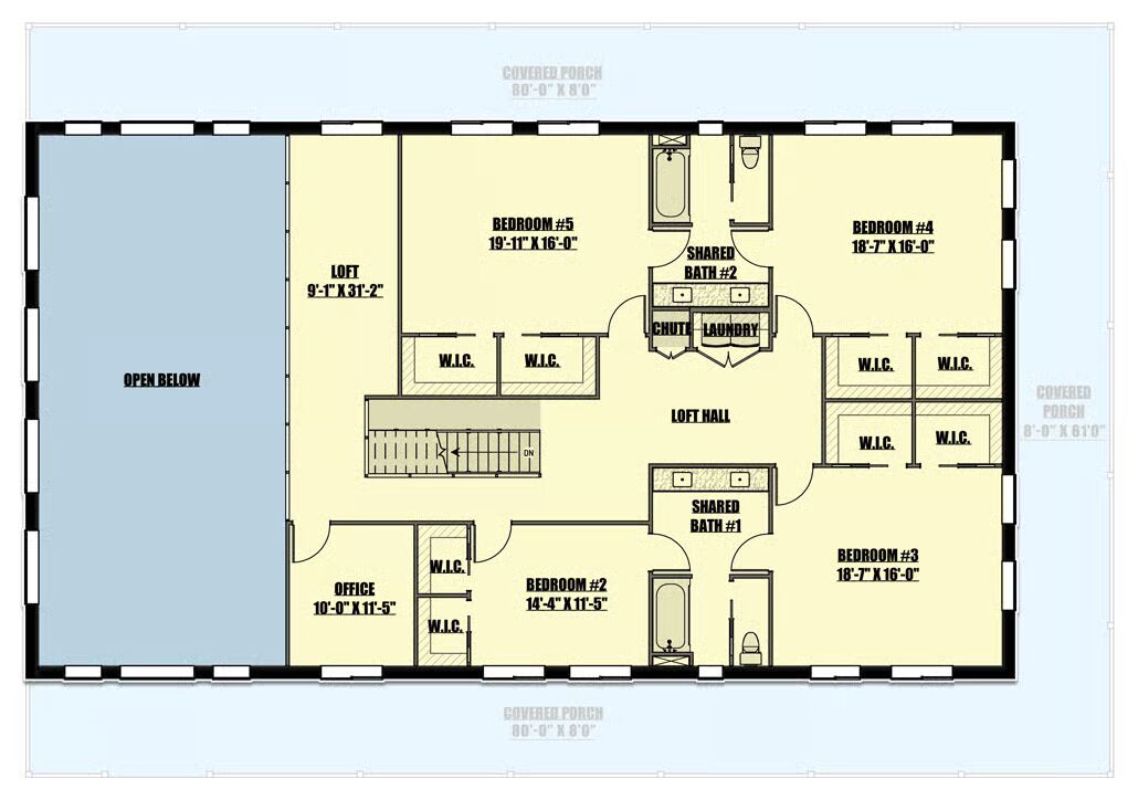
Second level floor plan

Buy This Plan

This striking barndominium features a towering wall of windows and a classic wrap-around porch, blending rustic charm with modern grandeur.
The modern barndominium’s dramatic front windows perfectly frame the sunny landscape, offering breathtaking views from inside.
A perfect blend of form and function, this barndominium’s expansive windows bring the beauty of the outdoors into the spacious interior.
The generous, covered porch spans the length of this bright white barndominium, creating an ideal outdoor living space for relaxing.
Classic white siding and a long, covered porch define the relaxed, sprawling silhouette of this luxurious barndominium.
Soaring, vaulted ceilings and a wall of windows fill this open-concept great room with light and incredible views.
This chic kitchen marries modern black appliances with warm wood tones and unique woven light fixtures for a touch of bohemian style.
A sun-drenched, open kitchen concept is anchored by a dark wood island and complemented by stunning white marble accents.
Massive, floor-to-ceiling windows create an immersive living and dining space that feels seamlessly connected to nature.
The serene master suite is highlighted by a spectacular crystal hoop chandelier, adding elegant drama above the comfortable bed.
Luxurious textures, from a black-and-white marble vanity to a unique alligator-skin-textured cabinet, make this bathroom a true showpiece.
A stunning soaker tub sits beneath a large window, offering a spa-like retreat with a view in this beautifully modern bathroom.

Buy This Plan

Expansive and versatile, this Barndominium-inspired home offers over 6,100 square feet of living space across two levels, with an exterior that blends rustic charm and modern appeal.

Designed exclusively for Architectural Designs, it can be built with upgraded 2×6 exterior walls for added durability.

An inviting 8-foot-deep covered porch wraps around three sides of the home, perfect for outdoor living. Inside, soaring two-story ceilings in the great room and dining area create a dramatic setting ideal for entertaining.

Top 5 Mistakes DIY Barndo Builders Make!
Most self-builders lose $10K+ before breaking ground.
Grab the Planner

The gourmet kitchen features generous prep space, a large range, and direct access to a cleverly designed utility area that combines the pantry, laundry, and mudroom into one seamless hub of convenience.

The main-level master suite is a luxurious retreat with a spa-style wet room in the en suite. A guest bedroom and toy room round out the first floor.

Upstairs, you’ll find four spacious bedrooms, each with dual walk-in closets, sharing two Jack-and-Jill baths. A dedicated office adds flexibility, serving perfectly as a remote work space or study area.

With its striking design, abundant storage, and thoughtful floor plan, this home delivers the best of modern luxury and family function.

=> Looking for a custom Barndominium floor plan? Click here to fill out our form, a member of our team will be in touch.

See also  Barndominium-Style House with 1380 Sq Ft of Garage and Shop Space - 1108 Sq Ft (Floor Plan)
💸 80% of Barndo Budgets Blow Up in Planning
Get the $7 tool that helps you avoid delays, overbidding & costly mistakes.
Grab the $7 Planner
0 Shares

Lisa Young

Lisa Young, writer and construction pro, crafts custom homes. Captivated by barndominiums for four years, she shares insights and advice in engaging articles, empowering readers to create unique living spaces mirroring their aspirations. Join her exciting journey exploring barndominium living.

Recent Posts