Specifications
- Area: 4,665 sq. ft.
- Bedrooms: 5
- Bathrooms: 4.5
- Stories: 1-2
- Garages: 2
Welcome to the gallery of photos for the Expanded Farmhouse-Inspired Barndominium-Style House with Guest Apartment. The floor plans are shown below:




Buy This Plan





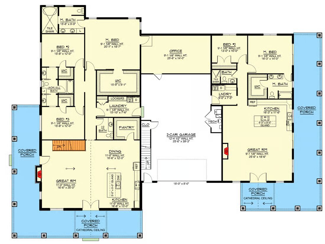
This farmhouse-inspired barndominium plan combines style and versatility, offering the perfect setup for multi-generational living, an in-law suite, or rental income potential.
The main residence features 3 bedrooms, including a private master suite with a 4-piece bath, walk-in closet, linen storage, and direct access to a home office.
Two additional bedrooms share a full bath and enjoy easy access to the laundry room and garage. The open-concept great room welcomes you with a cathedral ceiling, cozy fireplace, and French doors leading to a wraparound porch.
The gourmet kitchen boasts a 5’ x 9’ island and a walk-in pantry, seamlessly flowing into the dining area for effortless entertaining.
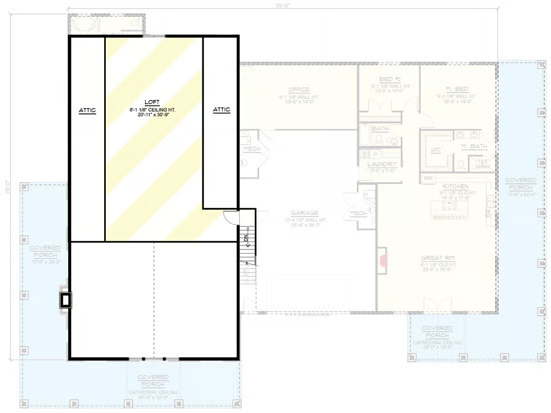
At the heart of the home, an oversized garage provides space for vehicles, storage, or a workshop, complete with a staircase to a versatile loft that can serve as an office or extra storage.
On the right, a private 2-bedroom apartment offers 1,548 sq. ft. of flexible living space. The apartment includes an open living area with a full kitchen, its own laundry, and a 10’-deep porch spanning the entire length of the home—perfect for guests, extended family, or rental income.
Exterior details include durable corrugated metal siding, rustic farmhouse charm, and expansive outdoor living areas, creating a property that blends functionality with modern country style.
=> Looking for a custom Barndominium floor plan? Click here to fill out our form, a member of our team will be in touch.
