Specifications
- Area: 3,517 sq. ft.
- Bedrooms: 5
- Bathrooms: 3.5
- Stories: 1
- Garages: 4
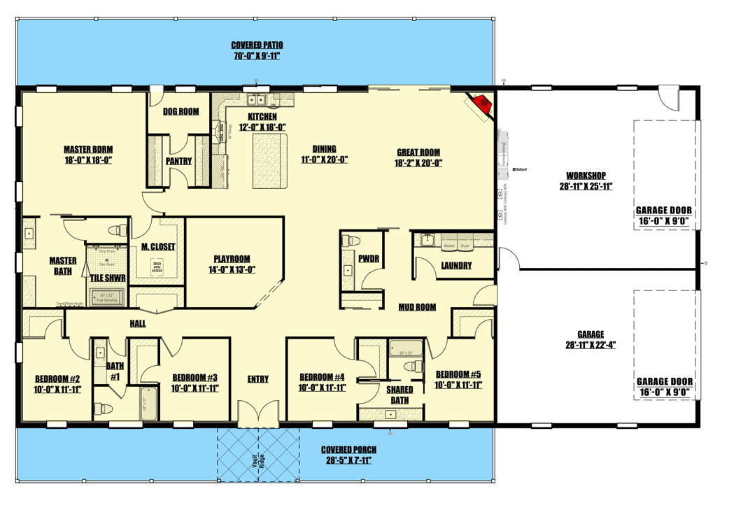
Welcome to the gallery of photos for the Exclusive One Story Barndominium-style House – 3517 Sq Ft. The floor plan is shown below:


















This exclusive single-story Barndominium plan combines rustic appeal with modern comfort, highlighted by front and rear porches (7’11” deep and 9’11” deep) that span the full width of the living space—perfect for outdoor relaxation and entertaining.
Inside, the open-concept great room, dining area, and kitchen create a seamless flow for everyday living. A cozy corner fireplace warms the space, while sliding doors connect directly to the back porch.
The kitchen is anchored by a central island with an eating bar, ideal for casual meals and gatherings.
The private master suite offers a spa-inspired bath with a wet room and a spacious walk-in closet. A dedicated playroom sits at the heart of the home, designed to keep toys and activities contained, while four additional family bedrooms line the front of the layout.
Two bedrooms share a convenient Jack-and-Jill bath, while the other two are separated by a full bath.
On the right side, an expansive garage and workshop provide ample storage and hobby space, with overhead doors offering easy side-entry access.
=> Looking for a custom Barndominium floor plan? Click here to fill out our form, a member of our team will be in touch.
