Specifications
- Area: 2,340 sq. ft.
- Bedrooms: 5
- Bathrooms: 2.5
- Stories: 2
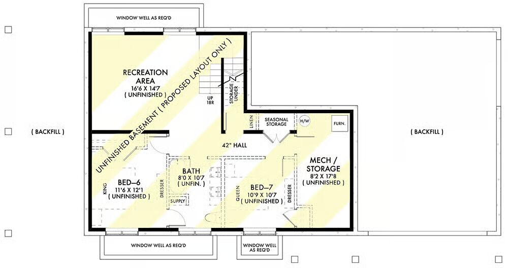
Welcome to the gallery of photos for the Barndominium with Flex Room and RV Bay – 2340 Sq Ft. The floor plans are shown below:



Buy This Plan



This stunning Barndominium-style home combines rustic charm with modern living, offering 2,340 square feet of heated space, 5 bedrooms, and 2.5 bathrooms.
Perfect for those who love versatility and functionality, the home also includes parking for two vehicles in the front bay with an 18′ x 8′ overhead door, plus RV storage in the side-load bay with a 10′ x 14′ overhead door.
Inside, the two-story living room and dining area feature sliding glass doors that open to a 12-foot-deep covered patio extending the full length of the home’s left side — ideal for seamless indoor-outdoor entertaining.
The L-shaped kitchen serves as the heart of the home, boasting an 8′ x 3’6″ island with seating for four and ample prep space for family meals and gatherings. A flexible den on the main level can easily serve as a guest bedroom or private home office, offering additional versatility.
Upstairs, the master suite provides a peaceful retreat with its private ensuite bath, while three additional bedrooms share a well-appointed hall bathroom.
Combining practical design with the relaxed feel of country living, this Barndominium offers the perfect blend of comfort, style, and everyday convenience.
=> Looking for a custom Barndominium floor plan? Click here to fill out our form, a member of our team will be in touch.
