Specifications
- Area: 6,218 sq. ft.
- Bedrooms: 5
- Bathrooms: 3.5
- Stories: 2
- Garages: 5
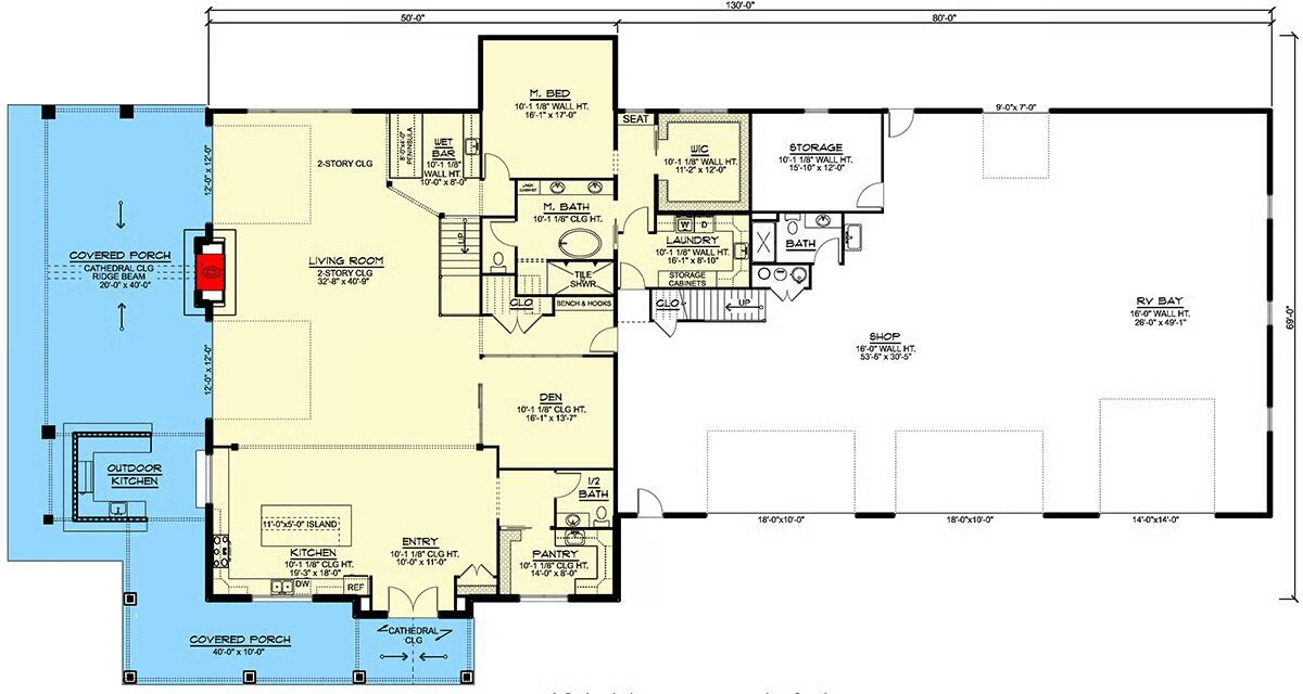
Welcome to the gallery of photos for the Barndominium-Style House with 5-Car Garage – 6218 Sq Ft. The floor plans are shown below:






















This impressive 5-bedroom barndominium-style home offers an expansive 6,218 sq. ft. of heated living space and an RV-friendly garage with room for up to 5 vehicles, including an RV or boat, providing 3,359 sq. ft. of parking and storage.
Built with conventional wood framing and 2×6 exterior walls, it blends durability with modern farmhouse appeal.
A wraparound porch spanning three sides enhances the home’s charm, while an outdoor kitchen and a striking two-sided fireplace—shared with the great room—create seamless indoor-outdoor living.
The living room itself is framed by matching 12′ x 12′ overhead doors, further extending the connection to the outdoors.
The main-level master suite offers privacy and convenience, with the laundry room also located on the first floor. Upstairs, four additional bedrooms and a dedicated home office provide ample space for family or guests. Access is available via the main staircase as well as a secondary staircase from one of the garage bedrooms, offering flexibility and function.
=> Looking for a custom Barndominium floor plan? Click here to fill out our form, a member of our team will be in touch.
