5-Bedroom Barndominium House with Man Cave Workshop in the Garage – 4272 Sq Ft (Floor Plan)

74 Shares

Specifications

  • Area: 4,272 sq. ft.
  • Bedrooms: 5
  • Bathrooms: 3.5
  • Stories: 2
  • Garages: 3

Welcome to the gallery of photos for the Barndominium House with Man Cave Workshop in the Garage – 4272 Sq Ft. The floor plans are shown below:

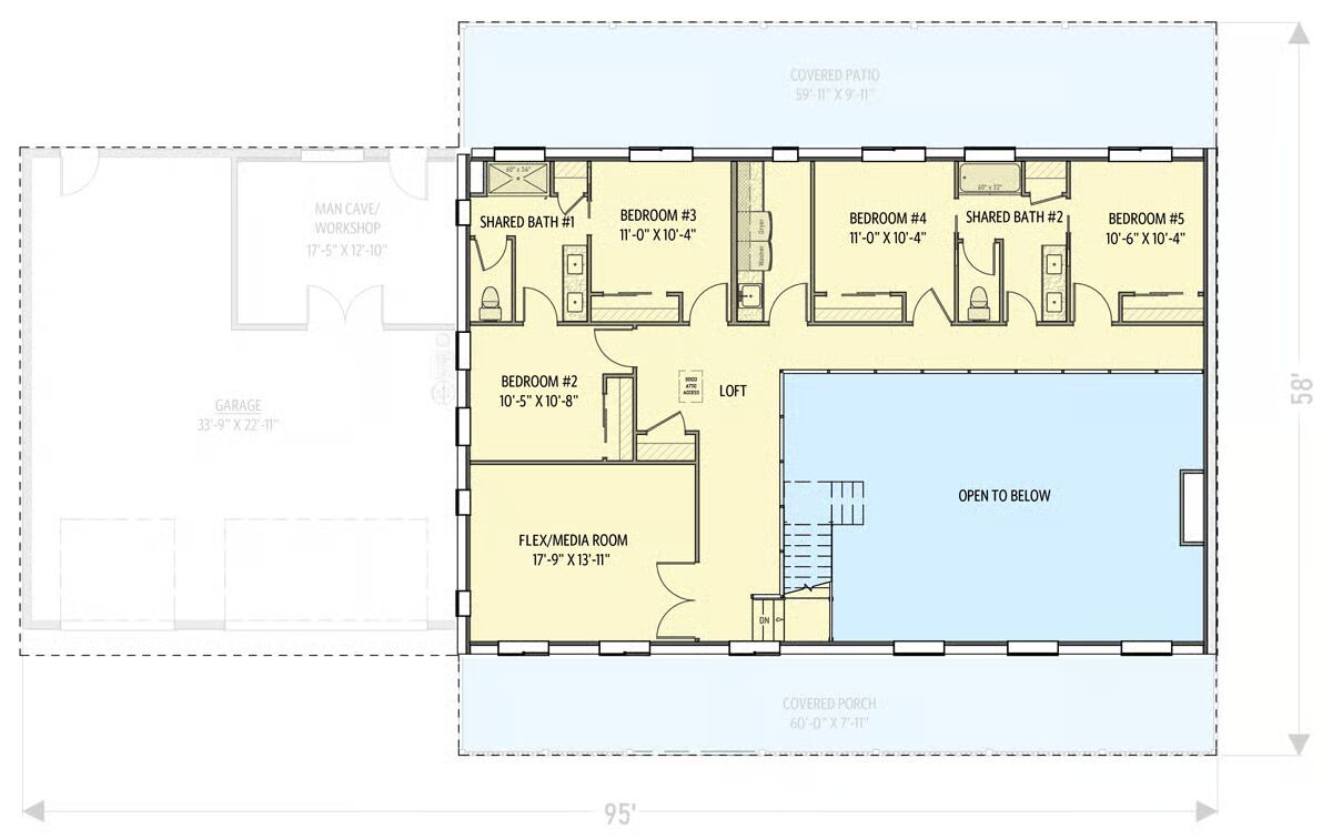
Main level floor plan
Second level floor plan

Buy This Plan

This barndominium-style house welcomes you with a classic wraparound porch and spacious two-car garage.
The rustic stone chimney and inviting front porch add character to this striking modern barndominium.
A broad side view showcases the clean lines and extensive porch that define this elegant barndominium.
The sweeping porch roof and wooden columns create a perfect, shady spot for outdoor living on this barndominium.
The long, graceful profile of this home highlights the seamless blend of farmhouse charm and contemporary design.
Under a blanket of stars, this barndominium glows warmly, a tranquil and picturesque retreat.
A stunning view of the open floor plan, where the kitchen and entry hall flow effortlessly into the living area.
Soaring ceilings and a tall, white brick fireplace create a bright and airy living room perfect for gathering.
This inviting living space features custom built-ins and a cozy fireplace, framed by a spectacular two-story ceiling.
The view from the second-floor loft shows off the home’s open layout, with a great room and kitchen below.
A perfect blend of style and function, the main level combines the kitchen, dining, and living areas into one spacious hub.
A bright, modern kitchen and dining area offers a perfect spot for both casual meals and entertaining guests.
The all-white kitchen features a large island, sleek appliances, and plenty of counter space for all your culinary adventures.
This kitchen-to-living room view highlights the beautiful exposed wood ceiling and seamless flow between spaces.
The grand entryway welcomes you with an open view of the main floor and staircase, setting a stylish tone for the home.
A unique perspective from the dining area reveals the entire open floor plan, from the kitchen to the staircase.
The master bathroom is a pristine sanctuary with a standalone tub and a stunning dual-sink vanity.
This spa-like bathroom features a sleek, frameless glass shower and a luxurious freestanding tub.

Buy This Plan

Discover timeless style and modern comfort in this Barndominium-inspired home, designed with durable 2×6 framing and featuring inviting front and rear porches that span the full length of the home.

A spacious 3-car garage includes a dedicated man cave / workshop, blending function with lifestyle.

Step inside to a two-story great room, highlighted by a cozy fireplace framed with built-ins and expansive windows that flood the space with natural light.

The chef’s kitchen features U-shaped cabinetry surrounding a central island, seamlessly connecting to the dining area with direct access to the rear porch—ideal for indoor-outdoor entertaining.

The main-level master suite is a private retreat, complete with a sliding barn door leading to a luxurious bath boasting a freestanding tub and dual vanities.

Upstairs, a double-sided staircase leads to four secondary bedrooms, each sharing Jack-and-Jill baths and connected by a dramatic catwalk-style hallway. A versatile flex room offers endless options, from media lounge to playroom, completing the second floor.

Blending rustic charm with modern design, this home delivers space, comfort, and personality—inside and out.

Top 5 Mistakes DIY Barndo Builders Make!
Most self-builders lose $10K+ before breaking ground.
Grab the Planner

=> Looking for a custom Barndominium floor plan? Click here to fill out our form, a member of our team will be in touch.

đź’¸ 80% of Barndo Budgets Blow Up in Planning
Get the $7 tool that helps you avoid delays, overbidding & costly mistakes.
Grab the $7 Planner
74 Shares

Lisa Young

Lisa Young, writer and construction pro, crafts custom homes. Captivated by barndominiums for four years, she shares insights and advice in engaging articles, empowering readers to create unique living spaces mirroring their aspirations. Join her exciting journey exploring barndominium living.

Recent Posts