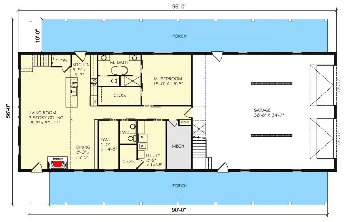
Specifications
- Area: 3,299 sq. ft.
- Bedrooms: 5
- Bathrooms: 3.5
- Stories: 2
- Garages: 2
Welcome to the gallery of photos for the 2-Story Barndominium with 10′ Deep Front and Rear Porches. The floor plans are shown below:










This impressive rectangular barndominium offers 3,299 sq. ft. of living space framed by 10′-deep covered porches in both the front and back, plus a 1,563 sq. ft. garage with dual 12′ x 12′ overhead doors and convenient man-door access.
Inside, soaring ceilings define the open-concept living room, seamlessly connected to the island kitchen and dining area, while a generous walk-in pantry provides abundant storage for both everyday essentials and larger appliances.
The main-level master suite is a private retreat, complete with a spa-inspired 5-fixture bath and a spacious walk-in closet.
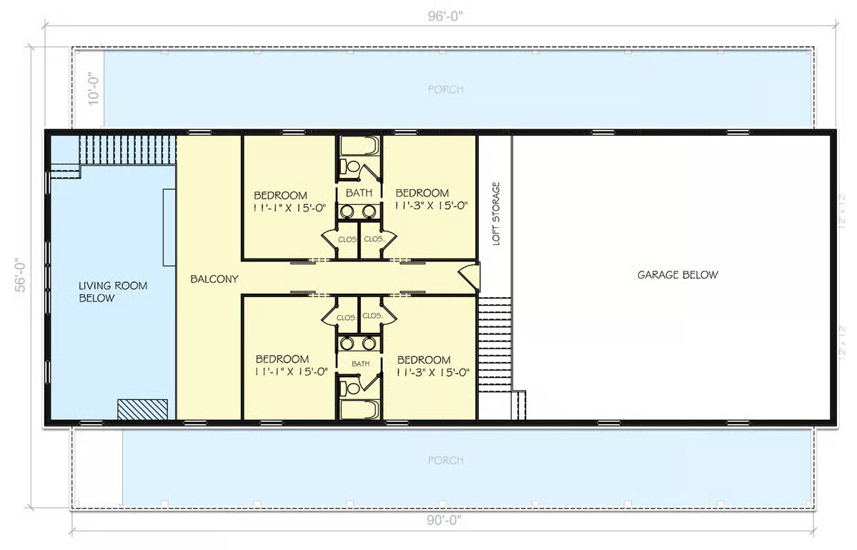
Upstairs, a balcony overlooks the living room and leads to four secondary bedrooms, paired into two Jack-and-Jill baths for both comfort and convenience.
Blending functionality, flexibility, and rustic charm, this barndominium is designed for modern family living with ample room to relax, entertain, and grow.
=> Looking for a custom Barndominium floor plan? Click here to fill out our form, a member of our team will be in touch.
