4-Bedroom One-Story Barndominium House with 4 Bedrooms – 2552 Sq Ft (Floor Plan)

16 Shares

Specifications

  • Area: 2,552 sq. ft.
  • Bedrooms: 4
  • Bathrooms: 3
  • Stories: 1
  • Garages: 2

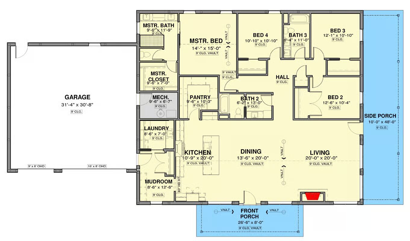
Welcome to the gallery of photos for the One-Story Barndominium House with 4 Bedrooms – 2552 Sq Ft. The floor plan is shown below:

Buy This Plan

The main facade of the Barndominium-style house is highlighted by a vibrant sunset and a beautiful, flowering garden.
This Barndominium-style house offers a long, inviting covered patio area perfect for relaxing outdoors.
A striking aerial view showcases the modern Barndominium’s gabled entrance, clean lines, and attached two-car garage at sunset.
This classic Barndominium-style home features a prominent gabled wood-truss entrance and an attached two-car garage.
The Barndominium-style residence combines a large, dark two-car garage with a bright white facade and gabled entry.
A clean and modern Barndominium with an expansive wrap-around porch, featuring dark window frames for sharp contrast.
This elongated Barndominium-style house features a sleek metal roof and a spacious, covered side patio overlooking the landscape.
A simple yet elegant Barndominium home with a wide covered porch, offering classic country living aesthetics.
This inviting living room features a modern fireplace, vaulted ceiling, and woven accent furniture, all framed by large picture windows.
An open-concept dining area sits under a vaulted ceiling, seamlessly connecting to the stylish kitchen in the background.
The heart of the home, this kitchen boasts a large wooden island, two-tone cabinetry, and a striking dark tile backsplash.
A compact coffee nook with floating wood shelves and dark vertical tile leads into a spacious butler’s pantry.
The well-organized butler’s pantry features custom wood cabinets, marble countertops, and eye-catching dark green tiled walls.
A bright and functional mudroom/entryway provides built-in wooden storage, cubbies, and a cozy bench.
The peaceful master bedroom features a vaulted ceiling, modern farmhouse decor, and an abundance of natural light.
A luxurious, modern bathroom showcases double vanities, floor-to-ceiling cabinetry, and a walk-in shower with unique scallop tile.

Buy This Plan

Experience refined country living in this 2,552 sq. ft. single-story barndominium, showcasing 4 bedrooms, 3 bathrooms, and a spacious 973 sq. ft. 2-car garage.

Step inside to an open-concept floor plan highlighted by soaring vaulted ceilings that create an airy, inviting atmosphere. The seamless flow between the kitchen, dining, and living areas makes this home perfect for both everyday comfort and effortless entertaining.

A well-appointed kitchen features ample counter space and a generous walk-in pantry, while the adjoining mudroom enhances convenience and organization for busy households.

The master suite serves as a serene retreat, complete with a vaulted ceiling and spa-inspired design touches. Three additional bedrooms are thoughtfully positioned to provide comfort and accessibility for family or guests.

Blending modern design with rustic elegance, this barndominium delivers the perfect balance of luxury, functionality, and timeless charm.

=> Looking for a custom Barndominium floor plan? Click here to fill out our form, a member of our team will be in touch.

💸 80% of Barndo Budgets Blow Up in Planning
Get the $7 tool that helps you avoid delays, overbidding & costly mistakes.
Grab the $7 Planner
16 Shares
See also  3-Bedroom Country Barndominium House with Split Bedrooms and Home Office (Floor Plan)

Lisa Young

Lisa Young, writer and construction pro, crafts custom homes. Captivated by barndominiums for four years, she shares insights and advice in engaging articles, empowering readers to create unique living spaces mirroring their aspirations. Join her exciting journey exploring barndominium living.

Recent Posts