4-Bedroom Modern Farmhouse Barndo-Style House with Workshop Garage – 2500 Square Feet (Floor Plan)

0 Shares

Specifications

  • Area: 2,500 sq. ft.
  • Bedrooms: 4
  • Bathrooms: 3
  • Stories: 1
  • Garages: 3

Welcome to the gallery of photos for the Modern Farmhouse Barndo-Style House with Workshop Garage – 2500 Square Feet. The floor plans are shown below:

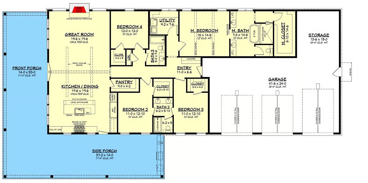
Main floor plan
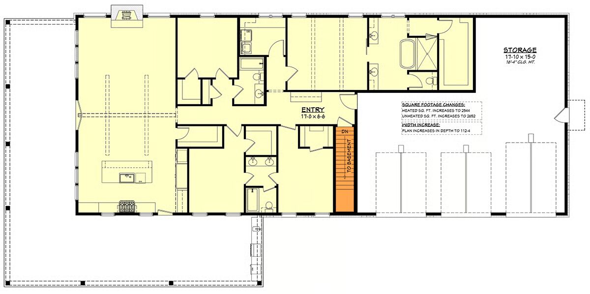
Main floor plan with basement stairs

Buy This Plan

 

Imagine evenings spent on the expansive porch of this inviting barndominium.
This barndominium stands as a testament to versatile and attractive home design.
Your dream of a modern country escape begins with this picturesque barndominium.
Admire the classic lines and durable construction of this unique barndominium residence.
The dark metal roof contrasts beautifully with the white siding on this stylish barndominium.
This barndominium perfectly blends rustic appeal with contemporary elegance.
Experience spacious country living with this beautifully designed barndominium.
The vaulted ceiling and spacious windows add to the airy feel of the house’s interior.
The warmth of the great room is complemented by the appealing fireplace and landscape outdoor views.
The kitchen’s modern aesthetics make it cozy and motivating.
Get a good night’s rest in the house’s main bedroom with cream accents.

Buy This Plan

Experience the perfect blend of farmhouse charm and modern barndominium style in this 4-bedroom home offering 2,500 sq. ft. of heated living space. An oversized 1,260 sq. ft. 3-car garage provides exceptional room for vehicles, storage, or a workshop.

Top 5 Mistakes DIY Barndo Builders Make!
Most self-builders lose $10K+ before breaking ground.
Grab the Planner

Built with conventional wood framing and 2×6 exterior walls, this home offers both durability and efficiency.

Inside, the open-concept layout showcases a vaulted great room with fireplace, spacious dining area, and a gourmet kitchen with an eat-at island and walk-in pantry. Expansive windows and a welcoming wraparound porch maximize natural light and outdoor living.

All bedrooms are thoughtfully designed for comfort, while the garage includes convenient access to additional storage above the main living area.

=> Looking for a custom Barndominium floor plan? Click here to fill out our form, a member of our team will be in touch.

💸 80% of Barndo Budgets Blow Up in Planning
Get the $7 tool that helps you avoid delays, overbidding & costly mistakes.
Grab the $7 Planner
0 Shares
See also  3-Bedroom Barndominium House with Oversized Garage - 1311 Sq Ft (Floor Plan)

Lisa Young

Lisa Young, writer and construction pro, crafts custom homes. Captivated by barndominiums for four years, she shares insights and advice in engaging articles, empowering readers to create unique living spaces mirroring their aspirations. Join her exciting journey exploring barndominium living.

Recent Posts