Specifications
- Area: 2,779 sq. ft.
- Bedrooms: 4
- Bathrooms: 4
- Stories: 2
- Garages: 4
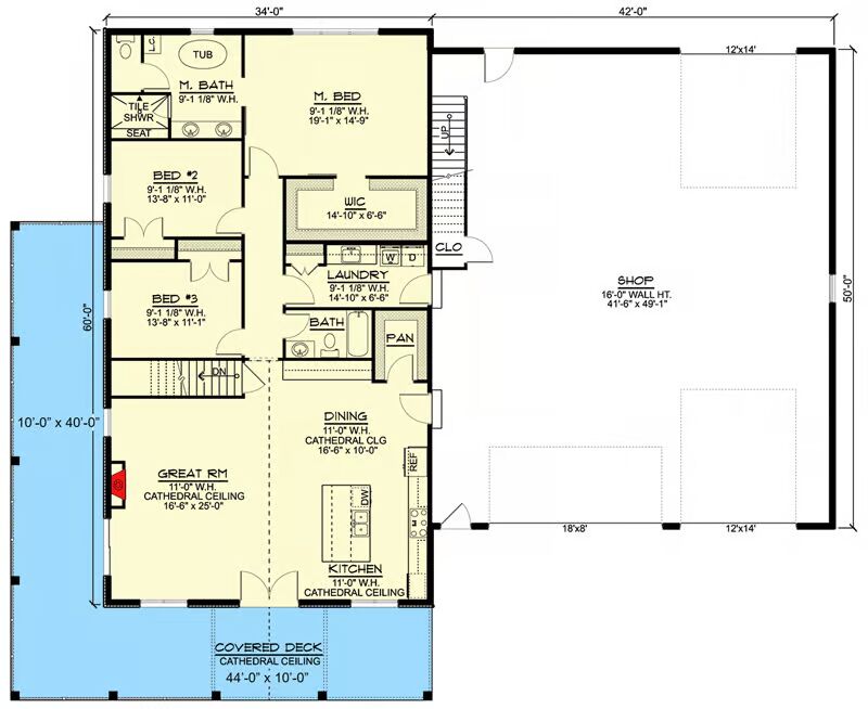
Welcome to the gallery of photos for the Farmhouse-Inspired Barndominium with Drive-Through RV Bay. The floor plans are shown below:



Buy This Plan





This farmhouse-inspired barndominium offers the perfect blend of rustic charm and modern functionality, highlighted by a 2,100-square-foot garage and workshop.
Designed with front and rear overhead doors, the right bay features 12′ x 14′ drive-through doors, making it ideal for RV storage and easy access.
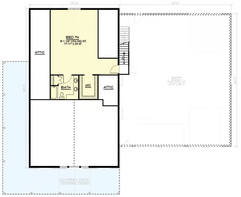
A staircase inside the garage leads to a private upstairs bedroom suite, complete with a walk-in closet and a full bath with dual vanities—perfect for guests or extended family.
The inviting wraparound porch sets the tone for this home’s warm and open design. French doors open into a spacious great room with a fireplace, seamlessly connected to the dining area and gourmet kitchen.
The kitchen boasts a large island and walk-in pantry, creating a hub for everyday living and entertaining.
Two secondary bedrooms are thoughtfully placed on the left side of the home, conveniently located near a full bath and a laundry room with garage access.
The private master suite is tucked at the rear, featuring a spa-inspired 5-fixture bath, linen closet, and generous walk-in closet.
Finished with durable corrugated metal siding, this barndominium-style home combines farmhouse character with practical design for modern living.
=> Looking for a custom Barndominium floor plan? Click here to fill out our form, a member of our team will be in touch.
