Specifications
- Area: 2,656 sq. ft.
- Bedrooms: 4
- Bathrooms: 2.5+
- Stories: 1
- Garages: 2
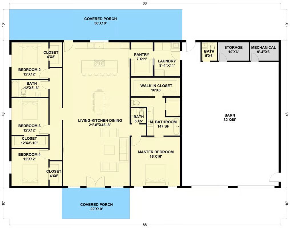
Welcome to the gallery of photos for the Budget Friendly Barndominium House with Open Concept Living – 2656 Sq Ft. The floor plan is shown below:











This beautifully designed barndominium-style home combines affordability, practicality, and modern living, offering 2,656 sq. ft. of living space, a 1,568 sq. ft. 2-bay garage, and a 780 sq. ft. covered porch for outdoor enjoyment.
With its thoughtful layout and generous proportions, this home is ideal for families or anyone seeking a spacious yet budget-friendly lifestyle.
Inside, an expansive open floor plan with soaring ceilings and abundant natural light creates a warm, inviting atmosphere.
At the heart of the home, the chef-inspired kitchen boasts a massive island with cooktop, ample counter space, and a large walk-in pantry for exceptional storage. The kitchen flows seamlessly into the dining and living areas, making it perfect for both everyday living and entertaining.
Convenience is built in with the attached garage, which connects to a large laundry room complete with sink and space for a second refrigerator. A nearby half bath in the garage adds functionality, especially for quick clean-ups after work or outdoor projects.
The luxurious primary suite is a private retreat featuring a spa-like bath with dual vanities, soaking tub, walk-in shower with bench, and a massive walk-in closet.
On the opposite side of the home, three additional bedrooms each feature walk-in closets and share a full bathroom, providing comfort and privacy for family or guests.
Designed with both style and practicality, this home delivers all the benefits of barndominium living without sacrificing affordability.
Its blend of open living spaces, smart storage solutions, and modern amenities makes it a perfect fit for growing families, entertainers, or anyone looking for a comfortable, functional, and charming place to call home.
=> Looking for a custom Barndominium floor plan? Click here to fill out our form, a member of our team will be in touch.
