4-Bedroom Barndominium House with Oversized RV Bay Garage – 2781 Sq Ft (Floor Plan)

1 Shares

Specifications

  • Area: 2,781 sq. ft.
  • Bedrooms: 4
  • Bathrooms: 3.5
  • Stories: 2
  • Garages: 3

Welcome to the gallery of photos for the Barndominium House with Oversized RV Bay Garage – 2781 Sq Ft. The floor plans are shown below:

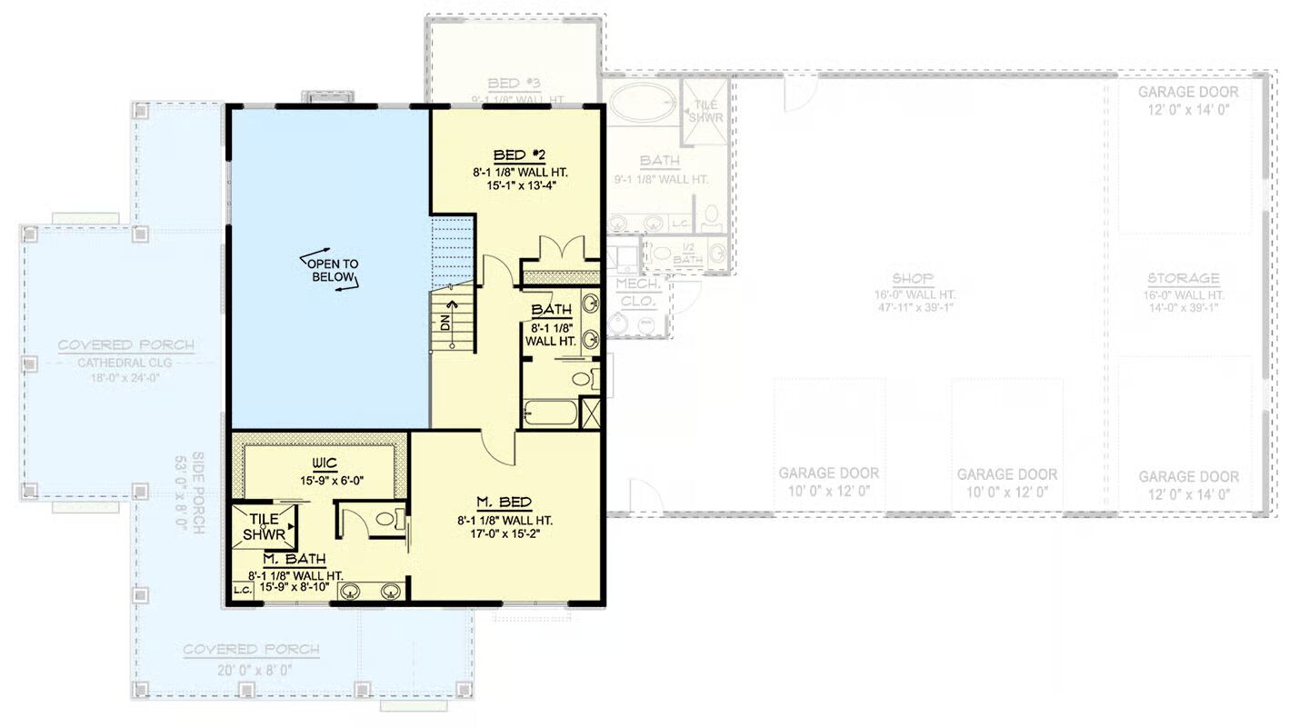
Main level floor plan
Second level floor plan

Buy This Plan

From the driveway, this angle reveals the impressive three-car garage and the seamless connection between the stylish living space and the functional workshop.
A captivating view of the front porch, this shot emphasizes the home’s striking blend of wood, stone, and board-and-batten siding.
Showcasing the expansive side of the home, this image highlights a large garage door, ideal for storing equipment or a recreational vehicle.
This barndominium-style home blends modern rustic charm with an inviting covered patio, perfect for relaxing outdoors.

Buy This Plan

This barndominium-style home offers 2,781 sq. ft. of heated living space with 4 bedrooms and 3.5 bathrooms, blending modern comfort with rustic charm.

An expansive 2,229 sq. ft. 3-car garage provides abundant room for vehicles, storage, or workshop needs, making this plan as functional as it is stylish.

=> Looking for a custom Barndominium floor plan? Click here to fill out our form, a member of our team will be in touch.

💸 80% of Barndo Budgets Blow Up in Planning
Get the $7 tool that helps you avoid delays, overbidding & costly mistakes.
Grab the $7 Planner
1 Shares
See also  4-Bedroom Barndominium-Style House with Wrap-Around Porch and Game Room - 2761 Sq Ft (Floor Plan)

Lisa Young

Lisa Young, writer and construction pro, crafts custom homes. Captivated by barndominiums for four years, she shares insights and advice in engaging articles, empowering readers to create unique living spaces mirroring their aspirations. Join her exciting journey exploring barndominium living.

Recent Posts