4-Bedroom 2668 Square Foot Barndominium-Style House with 3-Side Wraparound Porch (Floor Plan)

0 Shares

Specifications

  • Area: 2,668 sq. ft.
  • Bedrooms: 4
  • Bathrooms: 2.5
  • Stories: 2
  • Garages: 1

Welcome to the gallery of photos for the Square Foot Barndominium-Style House with 3-Side Wraparound Porch. The floor plans are shown below:

Buy This Plan

This striking Barndominium-style home features a classic gabled roof and a generously covered wrap-around porch.
An angled view highlights the long, two-story Barndominium-style structure and its inviting, expansive front porch.
The symmetrical front of this Barndominium-style home is defined by clean lines, ample windows, and a deep porch.
The rear of the Barndominium-style house offers private outdoor living with a covered patio and multiple access points to the yard.
A modern Barndominium-style side entrance is protected by a sleek awning, contrasting the light siding and dark metal roof.
This Barndominium-style side view showcases a prominent, contemporary full-glass garage door alongside a spacious side porch.
The long side of the Barndominium-style house features a wide covered porch running the length of the home, perfect for relaxing.
This grand, open-concept space features a soaring two-story ceiling, a sleek kitchen, and a loft overlook.
The dramatic living room is bathed in natural light and anchored by a striking floor-to-ceiling stacked stone fireplace.
A modern kitchen boasts dark cabinetry and a large marble-topped island, complemented by a sun-drenched dining area.
The stylish bedroom features a dark wood bed and a stunning geometric accent wall for a contemporary touch.
A luxurious master bath includes a modern deep soaking tub, double vanity with dark cabinetry, and a walk-in glass shower.
This bright bedroom offers a tranquil setting with minimal decor and a large window overlooking the outdoors.
The cozy upstairs loft provides a secondary seating area with an open railing, overlooking the main living space below.

Buy This Plan

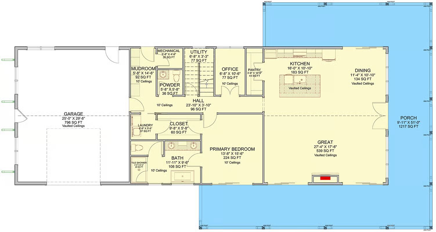
Showcasing striking barndominium-inspired style with traditional 2×4 exterior walls, this spacious 2,668 sq. ft. home offers 4 bedrooms, 2.5 bathrooms, and 796 sq. ft. of dedicated parking.

Top 5 Mistakes DIY Barndo Builders Make!
Most self-builders lose $10K+ before breaking ground.
Grab the Planner

A spectacular 9’11”-deep wraparound porch spans three sides of the home, providing an impressive 1,217 sq. ft. of covered outdoor living space—perfect for relaxing or entertaining year-round.

Inside, the front of the home presents a dramatic open-concept layout with soaring open-to-above ceilings.

The great room features a cozy fireplace and flows seamlessly into the dining area and gourmet kitchen, complete with a generous island and an expansive walk-in pantry for exceptional storage.

A private home office sits just off the main living area, enclosed with elegant French doors—ideal for remote work or quiet study.

The main-level master suite offers convenient access to both the porch and the laundry room, blending comfort with practical design.

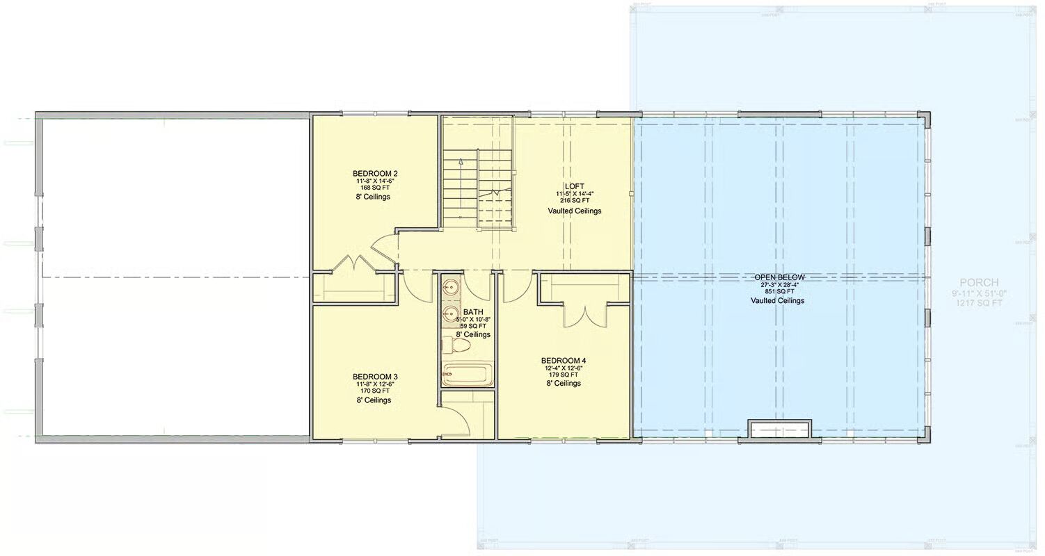
Upstairs, three additional bedrooms share a well-appointed bathroom and are connected by a spacious loft overlooking the great room below, adding both light and visual appeal.

Combining modern barn-inspired aesthetics with thoughtful functionality, this home offers abundant space, character, and comfort for everyday living.

=> Looking for a custom Barndominium floor plan? Click here to fill out our form, a member of our team will be in touch.

See also  3-Bedroom Country Craftsman House with Vaulted Great Room - 2030 Sq Ft (Floor Plan)
đź’¸ 80% of Barndo Budgets Blow Up in Planning
Get the $7 tool that helps you avoid delays, overbidding & costly mistakes.
Grab the $7 Planner
0 Shares

Lisa Young

Lisa Young, writer and construction pro, crafts custom homes. Captivated by barndominiums for four years, she shares insights and advice in engaging articles, empowering readers to create unique living spaces mirroring their aspirations. Join her exciting journey exploring barndominium living.

Recent Posts