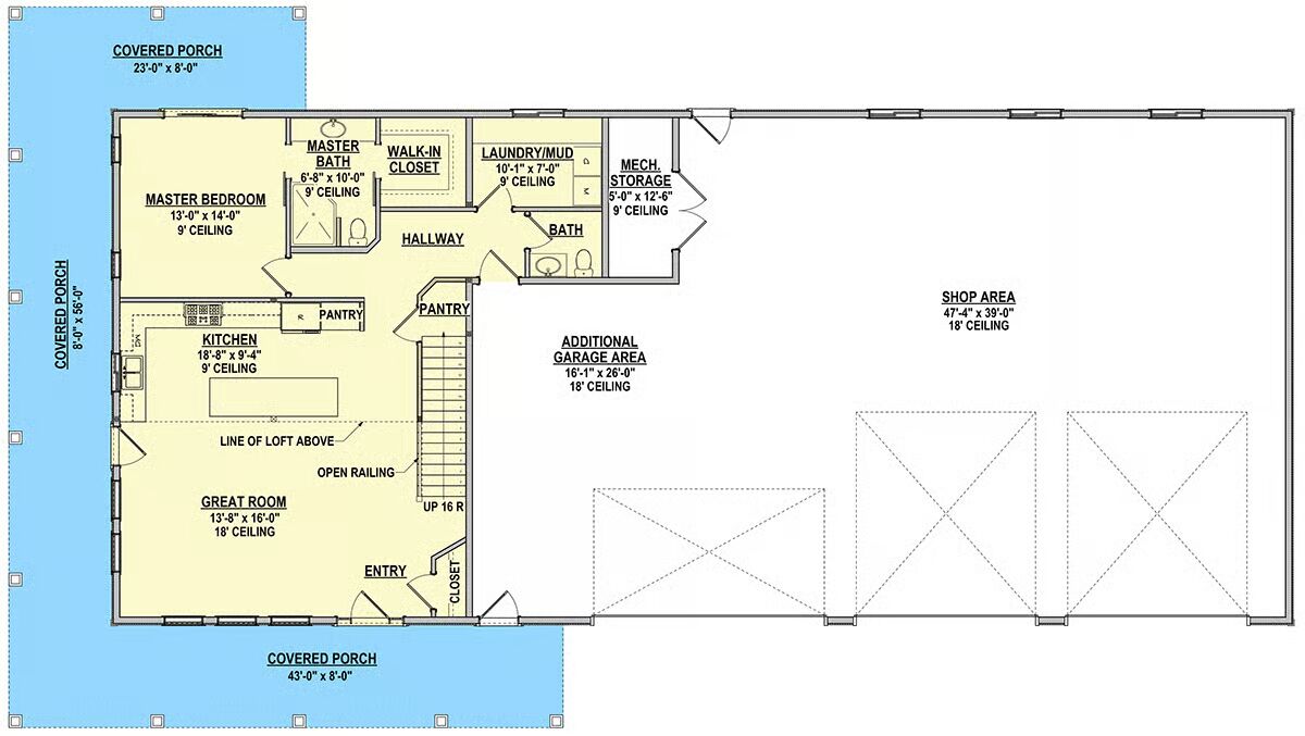
Specifications
- Area: 2,086 sq. ft.
- Bedrooms: 3
- Bathrooms: 2.5
- Stories: 2
- Garages: 4
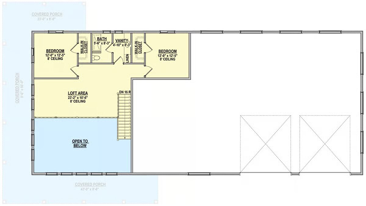
Welcome to the gallery of photos for the Two-Story Barndominium House with Wrap Around Porch – 2086 Sq Ft. The floor plans are shown below:









This Barndominium-style home combines rustic character with modern functionality, highlighted by a charming wraparound porch perfect for relaxing and taking in the views. Designed with conventional 2×6 wood framing, this plan offers both durability and timeless appeal.
Inside, an open-concept Great Room and Kitchen create an inviting atmosphere ideal for family living or entertaining guests.
Soaring ceilings enhance the sense of space, while a large open loft overlooks the Great Room, offering a flexible area for a home office, lounge, or recreation space.
The spacious garage is a standout feature, including two standard car bays and two RV-sized bays—perfect for storage, hobbies, or large vehicles. High windows fill the garage and shop area with natural light, making it both functional and comfortable to work in.
Blending farmhouse charm with modern practicality, this Barndominium-style design delivers open living, generous workspace, and effortless country elegance.
=> Looking for a custom Barndominium floor plan? Click here to fill out our form, a member of our team will be in touch.
